序 / 言
“以前瞻性的战略眼光站位高净值人群需求,创造契合高净值人群的健康生活方式,是龙湖·天奕打造的初衷。”作为沈阳顶级豪宅的龙湖·天奕,洞察一个阶层的云顶生活之外,更深知“这个阶层”对于生命的态度,尤为重视健康栖居环境的营造。
“真正的舒适与健康,是脱离物质层面的束缚,在精神上寻求的自由与平和,开放与包容。真正决定一个户型的豪宅属性,不在面积与材质,而在于对居者生活的洞察。”龙湖·天奕,正是深谙于此,从人性细节深度阐述健康豪宅的生活美学。
同 / 域
臻选上乘之地
作为沈阳的地王项目,龙湖天奕择址一环内、沈河区、文化路88号,承载着沈阳的60%的文化资源,与沈阳故宫百年文脉相承,环伺文艺二校、沈阳二中、沈阳七中、东北大学、沈阳音乐学院、鲁迅美术学院等国家重点高校等省内文化基地在此生根生长。
⊙ 区位图
Location Analysis
龙湖·天奕地处沈阳十字金廊之心——文化路88号,龙脉之轴——北望故宫,南靠浑河。场地呈大面宽、短进深之形态、整轮廓且阔间距。基于此,在规划上承袭中国传统建筑经典布局——中轴对称。
⊙ 总平面图
General Layout
同 / 景
奢享私域景观
基地北侧临河,其余三面临路,为打造闹中取静之高端住区,我们采用纯粹的商住分离策略、将6栋住宅楼和临街商业及公寓完全脱离,同时楼栋之间错位布置,一方面保证户户看河、视线无遮挡,另一方面利用商业作为隔离带,进一步保证城市道路对住区的干扰最小化。
⊙ 景观视角
Landscape Analysis
整个小区由6栋80m的高层住宅和一栋60m的高层公寓及三面的临街商业围合成7个大小、形态各异的中心庭院,其中最大的中心庭院面积可达2000平米,结合主入口设置,尽显奢华。各庭院之间彼此开放,形成某种空间联合体,空间便成了现代园林设计的骨架。
⊙规划生成
Planning Generation
正对南运河,通过楼位完全错开,使每一户都可直面水景 。大户型全方位180°无死角观景,小户型正对方向无遮挡取景。注重空间的彼此联系形成的游赏系列,四季不同的变化盛景把每一个单体建筑组织成为一个有秩序、有变化、统一完整的“景观联盟”。
⊙ 流线分析
Streamline Analysis
龙湖天奕汲取LVMH旗下的马尔代夫白马庄园的灵感,承袭Jean-Michel Gathy“舒适”理念,并融合世界一线豪宅中的“艺术”“传承”“私密”,将园区营造成一处充满仪式和灵性的世界顶级艺术生活景观场,项目在龙湖原有的五维园林景观上进行全面升级,打造沈阳真正的度假酒店级景观和全年景观利用率最大化的豪宅。
同 / 筑
形制化繁为简
龙湖天奕在立面设计上追求国际顶级豪宅的质地和美感,采用现代风格,以简洁的形体辅以精致线条、雅致窗套、质感铝板,达到近看有质、远观有势的效果。利用高层形体组合呈现的城市形象,构建城市天际线,形成一定的地域地标效果。
⊙ 立面生成
Elevation Generation
整体外立面由顶部、标准段、基座三部分构成。顶部玻璃幕墙采用同纽约432park豪宅同类型材料,香槟金铝板,呈一字线条稳重大气。通透明亮、美观节能。随着太阳、月光和灯光的变化,带来了动态的美。
中段强调挺拔感,石材、金属杆件与干净通透的玻璃碰撞,产生现代优雅的气质,通过铝板的竖向设计以及水平线条丰富了立面的立体感。
⊙ 高还原度对比
底部则强调入户仪式感,材质上以进口石材海蓝宝为主,辅以香槟金铝板,5.1米层高大堂,通过对材质细部精细化的设计彰显豪宅品质。
高层住宅采用局部幕墙立面,首层基座使用石材幕墙,二层以上部分使用香槟金铝板结合仿铜金属窗框,门窗玻璃采用双层中空节能玻璃。造型轻盈的香槟金铝板,防水、防污、耐腐蚀性良好,持久长新。
⊙ 材料分析
Material Analysis
将整个园区规划设计四大核心功能区:儿童场地、健身休闲、户外会客厅、户外沙龙。同时寻求都市与自然新的平衡关系,以更符合现代。引入南方住宅架空体系,打造沈阳首创的首层全架空泛会所极致居住体验。园景朗庭、架空会所,保证四季公共室外活动时间最长化。
同 / 奢
健康豪宅的生活美学
龙湖·天奕全区住宅楼法线完全错位,保证楼间距最大,实现户户看河且毫无遮挡。主力户型均采用一梯两户的格局,主力面积段170/220㎡,四房配置,在保证了户型的基本功能需求下,做足舒适度。主力标准户型基本采用双玄关、LDK餐厨一体化、酒店式奢华主卧套等系统设计,结合智能化、精细化设计,打造真正的可以和世界顶级豪宅相比肩的沈阳一线豪宅。
与此同时,为了追求极致的空间体验,经过严谨的筛选,最终采用德国进口旭格系统门窗,通过纤细的型材组合打造极大玻璃面,保证良好的通透效果,推窗便是一道270°瞰景广角,每天阳光是撒进家中的感觉,站在家里,近可以看园区最美的风景,远可以观沈阳主城的繁华。
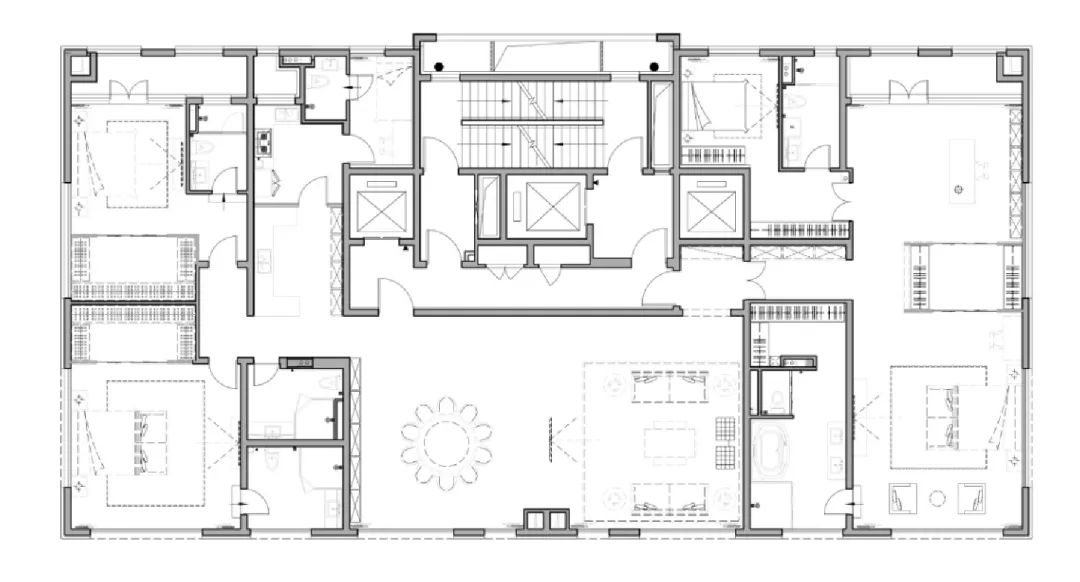
⊙ G3-220平:东边户型图
⊙ G3-460平:平层户型图
THE SKYLINE
在龙湖·天奕看来,如何通过“水”“空气”“阳光”“温度”“声音”这些基本的元素,为居者营造他们最需要的,也是理应享受到的舒适健康美学生活,才是对云顶人士最大的用心和尊重。同时,项目采用国际级精装设计理念,实施了100处精装细节处理,秉持着三大世界级的极致体现,可用去奢,从雅,极简六字概括。
工程档案
项目名称 | 沈阳龙湖·天奕
地理位置 | 辽宁沈阳文化路88号
项目业主 | 沈阳恒旭置业有限公司
项目功能 | 住宅
建筑面积 | 119751 ㎡
建筑设计 | 成执设计
总建筑师 | 李杰 曾庆华
副总经理 | 徐鹏
建筑设计团队 | 陈首都 李剑飞 刘泽宇 邓文凯 舒丽君 堵奇峰 朱坤龙 范志鹏 葛英
施工图设计 | 沈阳市华域建筑设计有限公司
景观设计 | DAOYUAN | 道远景观
景观施工 | 沈阳金域园林绿化工程有限公司
软装设计 | 沈阳中裕景观工程有限公司
幕墙咨询 | 德立工程咨询(北京)有限公司
设计时间 | 2019.04-2019.11
竣工时间 | 2021.11
项目摄影 | PrismImage 日野





















































