项目介绍 Project Introduction

美是理念的感性表现。
——黑格尔
背山面水,藏峰聚气项目位于重庆市两江新区照母山星光大道旁,东侧紧邻星湖学校且与龙湖舜山府遥相呼应,对照一路之隔的重庆腹地照母山森林公园,创造绝佳的优质景观资源。合理利用原始地形,处理好横向交通关系成为整体设计的因素。在一块代表城市源起和根脉的土地上,人文与美学在此碰撞融合,以轻盈动感的流体语言在重庆这个自然之城诉说着未来人居环境新的可能。

▲ 区位图


在庭院与园林造景上则嫁接圆明园中西融合的灵动与开阔姿态,现代审美提炼元素,以山水造境。规划讲究大庭小院,步移景异,叠山理水。
采用GPS苗木定位技术,移植约1000余株成熟乔木,把大自然的树木还原至园区。沿路红线退界至少10米,为园区打造沿街绿带。
▲ 总平面图

▲ 方案生成




高墙秘境,归隐自然
从重庆山地建筑找寻依据,结合地形格局,从而意于“隐”的社区归属感,尘林间便是“隐于城”,进而打造“出可入世,入则隐心”的真正低密度社区。由于山城地势不同,处于西南方向高差相对较高,同时形成错落有致的地势角度,带来层次感。城市里,尘林间,极制森林秘境,让森林重回城市。



▲ 地形剖面图
入口大门约5米高,兼以黑白大理石,盛启森镜门第之仪。开放水景等简约现代设计,外围挡墙采用2+1+1隔离布局,自称高墙秘境,城嚣隔绝门外,身心回归森林秘境。




空间尺度,删繁就简
立面设计以现代构成为基调,重视比例,对经典三段式的比例与尺度精准把控。承袭殿之轴线,三段式、水平向、挑檐,删繁就简,从而减少外立面对室内功能空间的阻碍和遮挡,提升舒适度。清晰明确的功能体块咬接,大体块的虚实对比,简洁明快而不失典雅。采用银色铝板和浅蓝玻璃的建筑材料,顶部造型简洁方正,提升了建筑的精气神。

▲ 立面生成

▲ 实景图与效果图对比

▲ 立面手法分析
用纯粹、干净的立面处理手法、辅以精致的细节把控。通过门头、屋顶、墙身、阳台、线脚等精细化设计,严控立面节点,最终的建筑立面呈现出一种儒雅又不失风骨的气质。





始于喧嚣,终归平静
尘林间的架空层把动静功能分区,通道的连接为居民提供人性化、高舒适性的理想生活。通过钢架与玻璃结合,打造内外通透的会客场所,将室外的森林景观与室内的陈列布置融合在一起。
不仅可以拥有公共的活动空间,更享受了半开放的邻里场所。加强了住宅内外部空间的连续性,使人更贴近自然。架空层作为城市空间和居住空间的链接,同时具有了人情味的自然空间,体会全龄化的共享社区。



由于尘林间地块与邻近路面存在高差关系,大堂采用了双层设计。大堂顶部穿孔铝板以及配合树形投影设计,尽藏生活哲学,体验不可度量的生活仪式感。
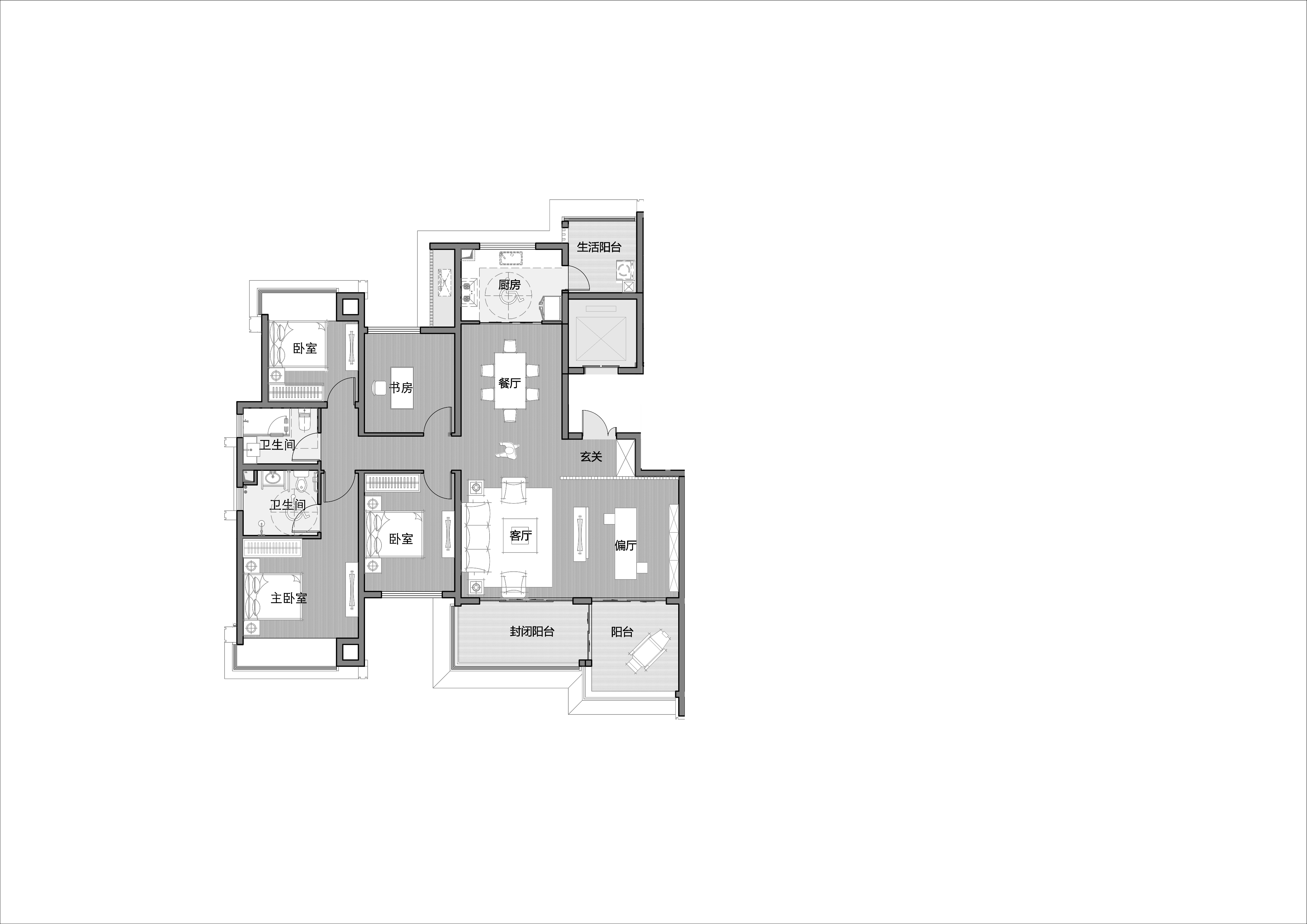
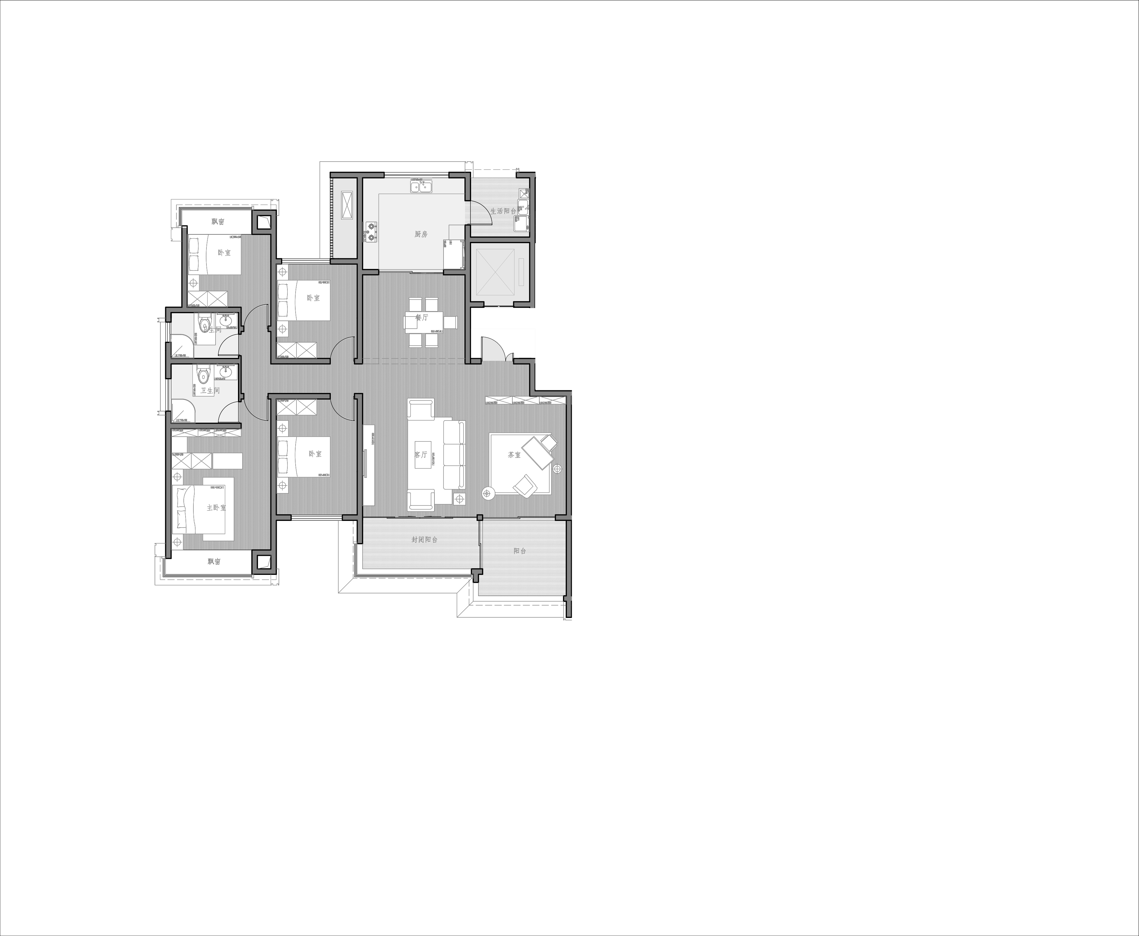
尘林间户型拥有公区独立入户,墅级居家体验。270°观景卧室多功能可变性,得到灵活共用。大面宽飘窗设置,进一步提升房间空间感受。玄关超强收纳功能,餐客茶一体L厅,舒适共享空间;U型超大厨房,超长操作面,连通生活阳台。

▲ 110 ㎡户型平面图(套内)

▲ 134 ㎡户型平面图(套内)

▲ 158 ㎡户型平面图(套内)
远离都市纷扰,以独特的现代手法展现在山林秘境之间。建筑序列井然,内外兼修,空间互相呼应而彼此共生。现代艺术的美消除了自然美的局限,因而它高于自然美,是美学圭臬。