项目介绍 Project Introduction
源起 / 鸟巢的初印象
鸟巢是鸟儿用来栖息、哺育幼儿搭建的“家”。它们一次次飞翔,寻觅,衔来枯枝、河泥、羽毛来编织鸟巢。它们大多在隐蔽的地方,鸟巢是鸟类最安全可靠的家,最温暖的摇篮。它们用嘴和树枝筑巢其工艺在动物界是无与伦比的,它们的匠心精神也影响着我们。
鸟巢在本案总作为设计元素装饰在空间中,从外观上模仿树枝织成的鸟巢,到提取曲面、马鞍形状、网状结构等元素,将他们巧妙的运用到设计里,赋予了建筑不可思议的戏剧性与震撼力。
定义 / 归巢而栖
阳光城项目位于巢湖边,归巢而栖。设计师希望通过空间结构、光影、颜色搭配、材料质感等几个部分来呈现空间的最佳状态,营造一份舒适感与安定感。
⊙手绘概念图
主界面的视觉中心是三层的露台,以精心布置的松树为主体的巨大盆景。大尺度的框景为停留的来客框出天空的画面,也为室内描绘了一幅宁静的画面。
⊙体块推演
整个建筑由清晰的几何线条构成,呼应凤凰灵动飘逸的尾羽,以抽象的手法,演绎筑巢引凤栖。入口大V斜撑,增强入口的昭示性和辨识度。
灵感 / 编织巢穴
设计师希望以巢穴的形态提供庇护感,最大限度地给予人脱离和放松的气息,在精神、身体和灵魂之间达到平衡。
四层跌水景观映入眼前,循环交错,耐人寻味。鸟巢会客厅周边水景环绕,宛如大国江河微缩于此,暗喻格局与气魄。
品质 / 参数化设计与实践
项目前期进行了大量参数化表皮方案设计,筛选出与巢相呼应的编制肌理表皮方案。相互交织,形成虚实变化;面的弯折,塑造型体变化。
在实际制作中,为保证立面效果的完美呈现。团队就单表皮肌理、双表皮肌理进行了多轮过程试验,反复打磨产品细节。
利用可视化幕墙设计系统,针对表皮研究深入精细的处理方式,实现方案前期设计的透视,光影和材质效果所见即所得。
设计团队希望塑造一个光之空间,通过序列累加的正方形光盒子,将过滤后的光线柔和地照射到建筑的主入口处。提供一个明亮的天井以及舒适的灰空间。
为保证光之空间的氛围明亮且柔和的视觉效果,设计团队与灯光团队对每一块方格的发光形式、PC版厚度做了多种尝试,从中筛选出了最优秀的视觉方案。
通过不同局部、不同细节的实验与验证,创造充满品质感的示范区氛围,强调场地的流线感、现代感和静谧感。
<< 高还原度的参数化建筑设计 >>
呈现 / 巢起之境
阳光城·檀悦汲取千年巢湖和有巢氏“构木为巢”的历史文脉,巧妙利用“巢”的设计语境,自示范区打造伊始,“巢”文化便深刻融入了建筑之中。
⊙元素提取
建筑内部仿照天然鸟巢的质感,以艺术馆级别的价值感和格局来演绎。设计师简化了装饰细节,顶部天井编织出交错纵横的格栅,清水混凝土构建出纯粹柔和的空间。
运用空中连桥、挑空、大跨度空间营造出富有戏剧性的空间感。
示范区的大厅和后勤辅助部分分别由最简单的矩形和方形空间构成,并通过一个圆弧状的公共展示区和模型沙盘连成整体,从开放空间自然过度到私密。
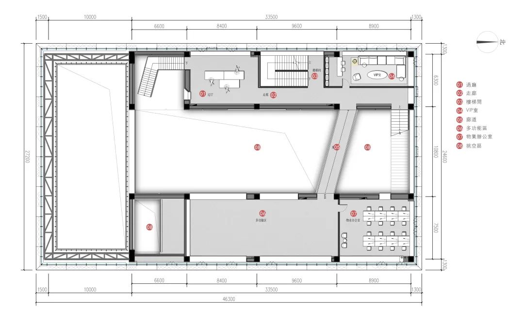
⊙一层平面图
⊙二层平面图
⊙三层平面图
构成 / 构木为巢
阳光城·檀悦汲取千年巢湖和有巢氏“构木为巢”的历史文脉,巧妙利用“巢”的设计语境,自示范区打造伊始,“巢”文化便深刻融入了建筑之中。从鸟巢中提取出螺旋元素,融入到入口动线设计之中。
⊙湖面的鸟巢
模仿鸟巢的肌理,在外表皮上达到和谐并富变化的层次感。观赏者走动时,在每个角度都可欣赏到建筑肌理与光影的变化。
⊙巢穴肌理
⊙东立面图
⊙南立面图
⊙西立面图
⊙北立面图
项目名称 | 阳光城檀悦-凤巢栖语售楼处
地理位置 | 合肥市包河大道与福州路交汇处
项目业主 | 合肥阳光城地产有限公司
项目功能 | 售楼处
建筑面积 | 2164.8㎡
建筑设计 | 上海成执建筑设计有限公司
总建筑师 | 李杰 曾庆华
设计总监 | 徐小康
设计团队 | 吴迪 陈颖 曾俊波 邓煜凡 李梦瑶 丁敏 张子豪
景观设计 | 上海罗朗景观工程设计有限公司
室内设计 | 深圳市矩阵室内装饰设计有限公司
施工图设计 | 成都基准方中建筑设计有限公司合肥分公司
设计时间 | 2020年4月
竣工时间 | 2020年9月
图文编排 | 成执品牌
项目摄影 | 吴志盛








































