项目介绍 Project Introduction
“地接岭南,人安物阜”,江西省赣州市南康区,当地三国时已有如此美誉,自然环境优美,文化源远流长。本案场地紧邻章江,三公园环绕,当建筑临水而设,我们希望用建筑语言讲述一个水的故事。
章江之滨,远眺文峰,东山在望,本案地处赣州市南康区芙蓉北大道,拥广阔江景,揽景致之胜。场地极具环境特色和氛围,设计生于水而融入景,希望筑造能够体现“场所精神”。
⊙区域位置
场所精神,在营造空间环境的行为及结果中展现出文化现象和精神特质,让进入场所的人感悟、领略和欣赏到某些精神效果,由然而生出一种由环境、场所及其构成元素带来的精神文化体验。本案即由随处可观的水景与建筑结合,产生了令人难忘的化学反应。
自西向东,赏最远纵深章江之景为沧浪之窗,赏最宽阔南面水景为千顷之窗,远眺文峰塔为瞭望之窗,而唯一转向内岸的则是对准公园的城市之窗。建筑周边还有道路相隔,窗口需要抬高才能越过阻碍而看得更远。
⊙视线分析
本案所处的场地两侧临道路,形状极不规则,面对这样的挑战,我们以建筑与景观设计的相辅相成,成就了整体的一致性,确保了游览的体验感。
⊙总平面图
建筑自远处眺望,仿佛浮于水上的科技方舟,色彩纯粹的金属外壳融入到水天一色的环境中,近看形体则如同波浪,水景水幕围绕包裹,整体营造水的故事,打造水上方舟的形象。
基于利用景观资源和展现工业美与科技感的考虑,我们尝试了多个方案,以宽敞明亮的落地窗和流畅简洁而有力度的形体为基点进行探索,提出了“林间溪”、“浪花”、“四水归堂”等设计思路,最终选择了以“科技方舟”为概念的方案。


⊙手绘展示
形态生成
本案位于道路交汇处,紧邻城市公园,北侧有待拆老建筑影响,景观价值较低,因此本案建筑沿章江展开,形体进行旋转契合场地,在丁字路口处形成入口广场,将体块切分形成框景效果。将景观资源最大化,以窗口为切入点,对准远处重要景致。
⊙形态生成
以建筑作为分界,入口广场景观设计规整,采用简洁的几何线条,层层升起与建筑平台一致,犹如水浪到岸边升起,基座如同波浪。
从入口处观,环绕主体的平台使外形具有一种科技方舟的概念感,拾阶而上,二层平台的设置既为观景者提供了一个亲水活动之处,同时也让自水景而望的观景窗所见景致更加纯粹。通过设计加强了空间的特质,使得场所精神更加突出。
⊙效果图
水景一直贯穿于游览建筑的始末,从入口景观的设置到二层用延伸出挑的平台铺出水景,从近水面的打造到水幕从上而下跌落,景观与建筑融为一体,给人感觉一气呵成。人们之所以能保留关于一个具体情境的记忆,是由于各种因素结合不断强化而形成这一情境的场所精神。
后部空间较为隐蔽安静,所能利用的场地形状极不规则,以曲线的坡道拟合边界,布置色彩趋向活泼灵动,设置了儿童游乐和人群活动的区域。
曲线坡道形态流畅自由,消解了场地形状给人的不和谐感,既提供了富有趣味的人行流线,又为宽敞的室外活动场地增加了许多特色灰空间,廊道交错,明暗交替,丰富了景观层次。
⊙剖面图
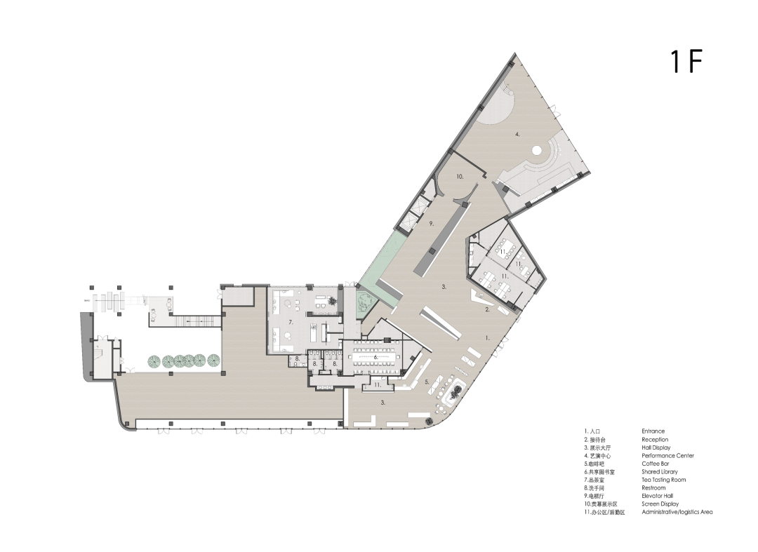
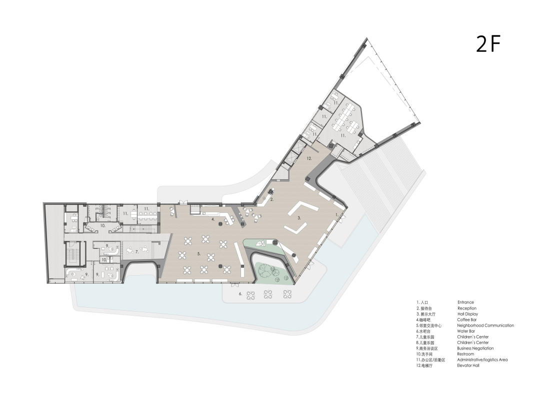
从城市整体规划的角度考虑,本案有其社会性角色属性,期望能够作为滨江都会的缩影,咖啡吧、书屋、演艺厅、私宴厅、南康云述博物馆、云栖space空间等多功能空间荟萃于此,结合项目定位打造充满生活气息+多维度体验主题展示区。
⊙滑动查看平面图
自室内向外看高大而宽敞的窗户极有利于游览者的观景体验,观景窗大玻璃面的设置在设计中一直占据重要地位,充分展现了城市江景之美。
大面积晶透无界的玻璃设计对于尺度和质感的要求很高,同时考虑通高玻璃面的高度在受力上是巨大的挑战,以拉丝不锈钢作为金属钢肋,轻薄纤细,结构受力好,极具现代感。
⊙滑动查看幕墙大样图
我们对幻彩铝板、哑光铝板、高亮铝板进行了多方位的比选,最终选择了银白色的高亮拉丝铝板,呈现高级感灰色系,极具水的纯净感。
⊙材料分析
临于水畔的建筑物让人想到园林建筑中的“水榭”,铝板与玻璃幕墙构成的立面造型是现代化技术对于传统建筑观的精彩转译,既符合水榭建造所要求的轻快通透,通达舒展,与环境相融,与水景相宜,同时又是实际存在的分隔,满足建筑物的功能需求。
具有工艺感的倒角构成了二层的池水平台,铝板具有良好的韧性,设计调节二维曲线和三维曲面以达到好的效果,组成双曲面的铝板每一块都不同。
⊙双曲铝板尺寸示意图
⊙铝板造型分析
入夜,室内灯光随着铝板弥散,墙面的简洁,地面灯光的点缀,外部水景的映衬模糊了建筑的内外界线,明暗交织,光影错落,给人以一种不同的光影空间体验。
建筑东侧的台阶沿水景而上,布置了长短不一的灯带,白天可作为景观雕塑供人们拍照打卡,夜晚则为建筑增添一份光彩。
⊙滑动查看立面图
工程档案
项目���称 | 赣州锦润 ▪ 滨江云宸展示中心
地理位置 | 江西省赣州市芙蓉北大道
项目业主 | 江西锦润置业有限公司
项目功能 | 展示中心
建筑面积 | 3157㎡
建筑设计 | 成执设计
总建筑师 | 李杰
设计总监 | 严芳
设计团队 | 孙永刚 林威 胡瑞冰
景观设计 | 上海亦构创意设计有限公司
室内设计 | 集艾室内设计(上海)有限公司
幕墙设计 | 浙江中南建设集团有限公司
施工图设计 | 成都基准方中建筑设计有限公司
设计时间 | 2021.6
竣工时间 | 2021.12
图文编排 | 成执品牌
项目摄影 | PrismImage









































