项目介绍 Project Introduction
办公空间新诠释 — 成执设计休息区改造

一个充满设计感的室内空间是当下所需,全新的办公空间不仅要满足办公环境的一切功能要求,还必须符合该企业的核心价值和企业宗旨。该休息区设计聚焦使用者的空间体验,并力图充分展现企业及其产品的价值和性格属性。
项目简介
项目是成执设计的办公区域改造,开放自由的内部环境营造出放松舒适的办公氛围。利用北美胶合木将办公区整合为统一的空间体系,并在此基础上通过对内部空间的重释,让建筑与成执的文化与精神产生关联。 项目位于上海视觉园创意园区内,由上海塑料三厂改造而成。改造前室内装修风格是以白色涂料为基调,略显得有些单一,格局如仓库一般,没有亲和力。宽阔的挑空活动区域,没有功能划分,浪费了部分空间。因此,设计师重新梳理功能与布局,并运用花旗松胶合木结构加建,使整个空间焕然一新。
空间重构
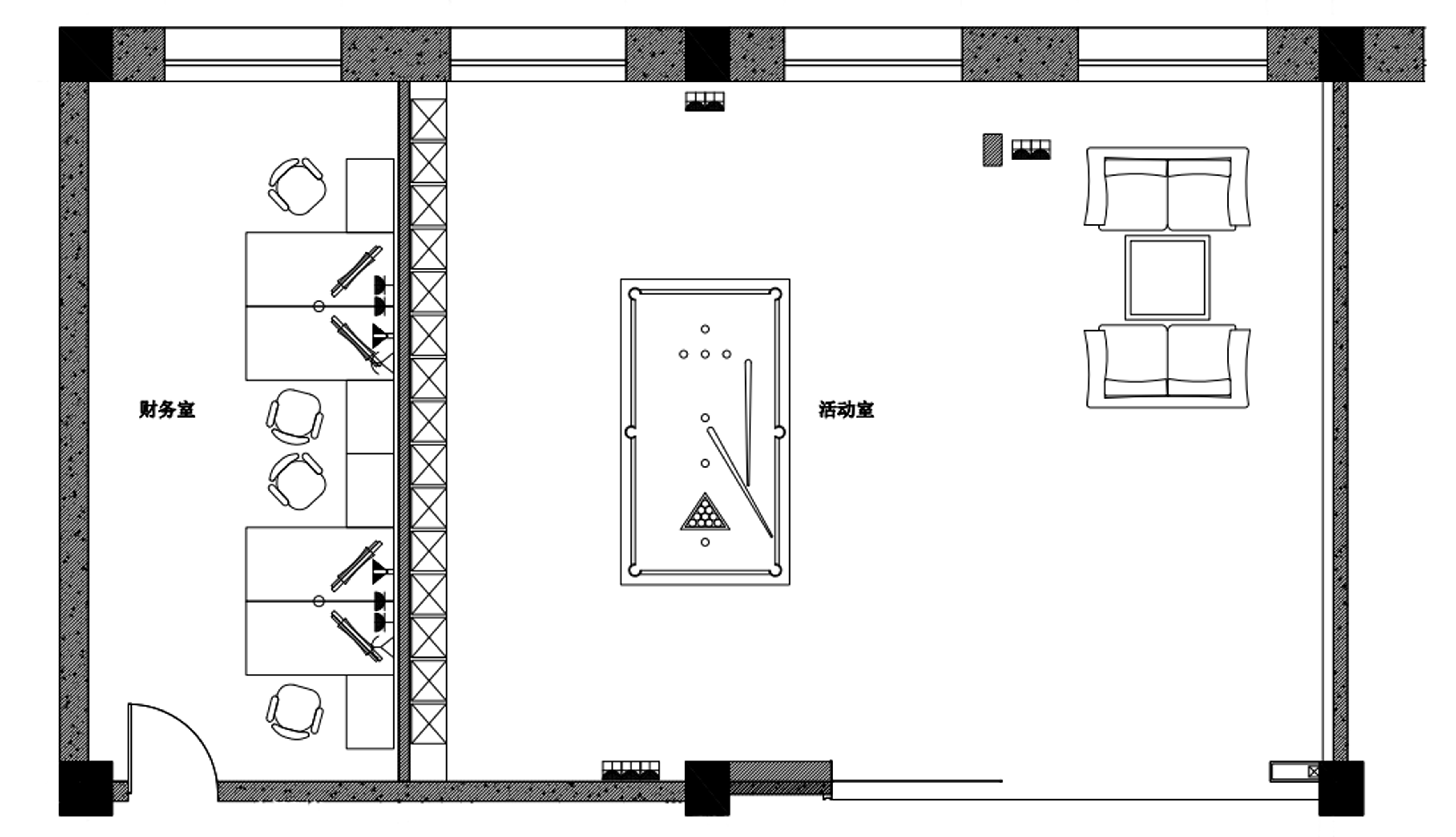
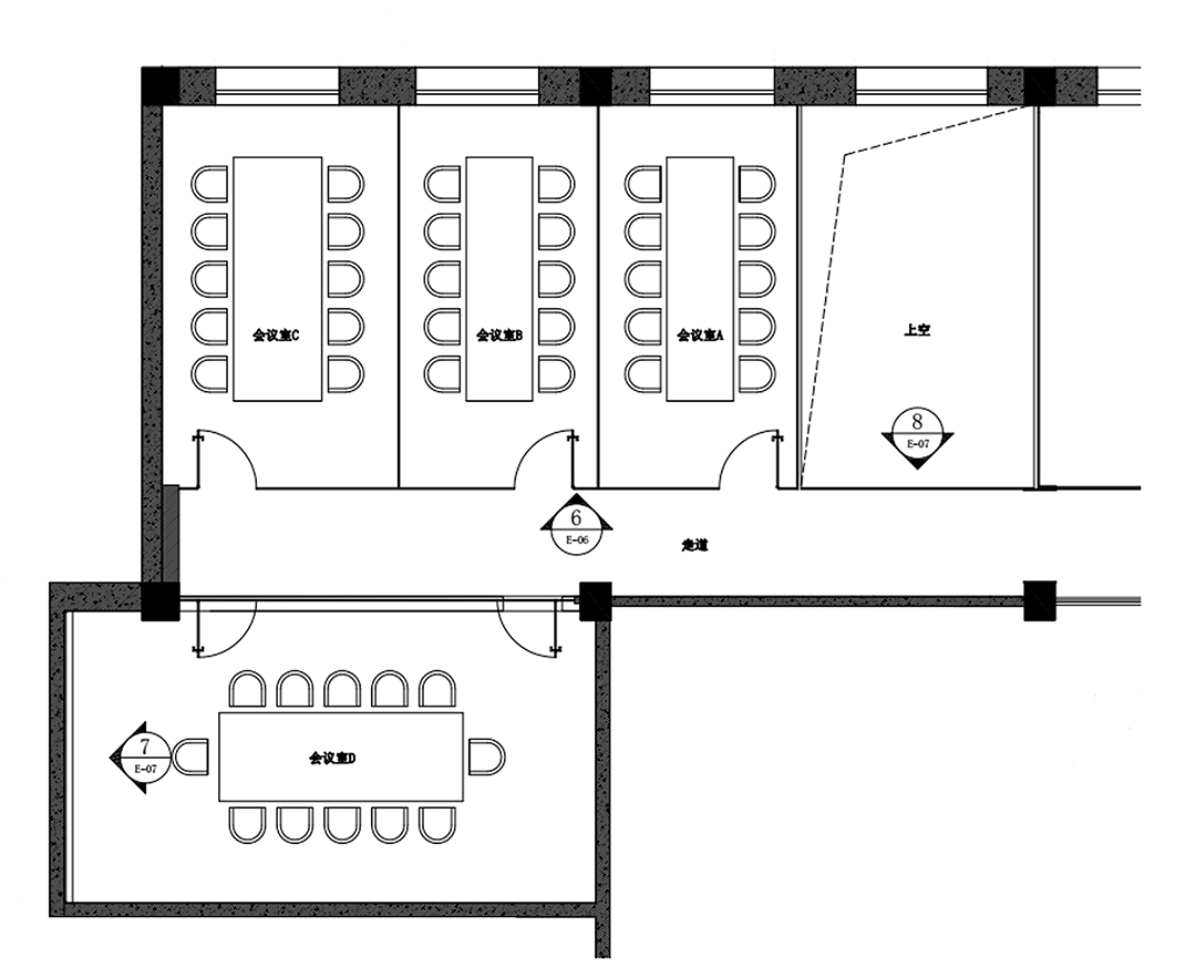
建筑师对于空间的重构大胆而具有想象力。将原本部分空间分割成上、下两层,但休息区上方依然形成一个挑空设计,解决了空间容纳度的同时,创造出丰富架构,让秩序与自由同时得以实现。二层的四个会议室充分的满足了办公需求。不仅利用了空间,还优化了功能。


工艺施工
本项目主梁、柱、楼板、地面均为北美花旗松胶合木,加建完全采用工厂预制,现场拼装的方式进行建造施工。整体结构的搭建仅用了3天时间,且为了不影响白天工作的员工,只能晚上作业。
花旗松胶合木在我们的盐城工厂预制加工后,运输至办公场地。由于楼层较高,场地限制等原因,从窗口吊装是最为安全且快速的方法。而木构本身自重轻盈,相比浇筑混泥土时间快三倍,安装也更为便捷。


为了使空间具有连贯性,天花板、墙面、地板的连接处均由一块块切割的曲面胶合木拼接而成。所营造的整体空间,视觉冲击力强烈。此外,左侧的一体化胶合木书柜形成秩序感,不仅打破了单一的木色,使空间具有层次,也为读者构造了一个静谧的阅读区。


木构空间,给人以舒适温馨的质感,木材特有的自然的味道能缓解员工的压力。木材是唯一可再生的建筑材料,在能耗、温室气体、空气和水污染以及生态资源开采方面,是公认的绿色建筑。员工们可在此休闲小憩,灵活的休息区,给予员工激发灵感和奋斗精神的绝佳环境体验。木结构、装配式、轻建筑等特点无一不是强调快速建造、低环境影响和绿色可持续的设计趋向。

