项目介绍 Project Introduction
商业的蓬勃发展与城市更新的繁荣发展紧密相连,时代天街如城中之城,紧随城市核心区域发展在探索中实现自身的蝶变升级。
▽ 自成核心 多方互联
作为收官之作,E馆既是一个时代的结束,也是另一个时代的开始。
两江交汇而出渝中半岛,山城之韵尽揽。渝中区历史悠久,孕育了重庆的“根”与“源”,作为巴渝文化的发祥地,承载着厚重的历史记忆。
本案所在的大坪街道,远在明朝就曾是古驿道,翻过陡峭的浮图关崖,是一处停歇的休憩之地。因此,大坪既是老重庆的交通枢纽,也是新重庆的几何中心,老街居民在此繁衍生息,来往旅人路途停步休憩,自周朝以来,见证巴山蜀水千年岁月。
⊙区位分析
⊙区域原貌(图片来源于网络)
⊙区域原貌(解放军后勤工程学院)
大坪虽然占据天然的地理优势,但是曾经的大坪给人留下的印象是短暂的过路之地,缺乏商圈的老旧环境。解放军后勤工程学院曾坐落于此,后搬迁至重庆大学城新校区。2009年学院旧校址拆除,时代天街圈地建设,随着大坪的发展开始了走向繁荣的一段历程。
十年间,便捷的交通网络逐渐展开,2012年底时代天街1期(A、B馆)开业,开启了石油路地区商业新局面;2014年初2期(C馆)开业,与A、B馆一同成为市民消费生活主场,2016年3期(D馆)开业,引入潮流体验式业态,打破传统购物模式,到2022年E馆建成,时代天街完成了历时十年的建设宏图。
重庆龙湖时代天街系列项目是大坪商圈发展的源动力,总体量高达150万平米,集食住、 行、游、购、娱为一体,为百万平方米的亚洲超级购物中心集群,完美融合休闲购物、行政办公、星级酒店、城市豪宅、交通换乘、餐饮娱乐、创意产业、城市广场、 文化艺术九大城市功能。
商业的蓬勃迈进与城市更新的繁荣发展紧密相连,时代天街如城中之城,紧随城市核心区域发展趋势,在不断探索中实现自身的蝶变升级,书写着商业发展繁华长卷。它改变了大坪以及石油路地区老旧的城市形象,也改变了周围居民的生活习惯,使得所处环境由典型的区域过路地变为具有全城吸引力的目的地。
城市更新,应努力创造宜业、宜居、宜乐、宜游的良好环境,时代天街的设计以具有强大功能包容性的城市综合体的建设影响一地,辐射一城,助推大坪城市更新。
时代天街作为四期五馆的巨型商业旗舰,通过商业岛屿之间的联系自成一城,以其巨型体量和高度的功能整合拓展城市公共空间,丰富游人的体验感和参与感,连续的空间,起伏的造型,变化的细部,令视觉惊喜不断。
商业岛屿的分布沿道路展开,设计在商业岛屿中嵌入连廊,使面与点之间产生线性串联,在商业岛屿间形成交织串联的公共共享空间,使人流在商业地面到顶层穿梭自如。
⊙空间的线性沟通
连廊串起室内与屋顶,形成空间感觉丰富的可游型环形商业动线,打破C馆、D馆、E馆因道路而产生的隔阂,实现商业一体化。
⊙商业联动性
塔楼形成了围合的城市三维空间,多重层次塑造多维度城市尺寸。多重属性的外溢,带来周边磁性引力。E馆作为时代天街的南门户,塔楼高度与北门户B馆塔楼的高度相仿,形成项目整体的一致感。
⊙围合与开放
时代天街系列中一期A、B馆定位为城市家庭时尚中心,建筑简洁大方,典雅美观,自此开始了老城的经典蜕变。二期C馆为重点区域,利用中心花园与景观、文化元素设计,更加凸显特色开放式街区商业,并形成目的性消费区域,成为核心式家庭娱乐购物中心。
三期D馆被定位为“潮流青年中心”,集合诸多体验业态,构建一系列的经历、事件、体验、活动、尝试,让人们全天候参与互动。建筑宛如漂浮的冰晶,形体富有活力和趣味,质感纯粹而多样化。
⊙时代天街系列
时代天街E馆在2022年10月落成,作为收官之作,E馆既是一个时代的结束,也是另一个时代的开始。E馆将作为整个大时代的东侧门户,补足大坪商圈区位上的最后一块短板。
E馆规划设计为一栋购物中心及两栋百米住宅,遵循时代天街整体规划,将住宅沿场地外侧设置,围合成“盆地”形状的空间布局,中心部分的屋顶、户外场地形成统一联系,提供更多优质的公共活动空间。东侧承接道路地铁引来的城市人群;西、南侧分别衔接项目C、D馆,使大坪正街与长江二路实现无缝连接。
⊙总平面图
购物中心充分考虑周边人群进入的便利性,占足东、西、南向城市界面的同时,向主要人流来向开设出入口,并通过地上地下与C、D馆的连接形成“自成核心,多方互联”的整体商业布局。住宅区将商业屋顶打造为入户花园,形成独立私密的住区活动空间,最大化商住综合体的居住价值。
E馆秉承了各场馆“互通互联,一体打造”的规划理念,通过空中连廊、地下通道等与相邻的C、D馆相连,实现了大时代商业动线的整体串联。
⊙流线分析
在E馆的设计过程中,我们通过对不断地寻找适合重庆天街系列最后一个城市界面的母题,寻求对地域肌理再造与提升的可能。时代天街系列的建设是随着时代的需要和变革而完善的,针对整体娱乐与体验业态相对较少的情况,同时延续和发展C馆与D馆的定位,E馆将形成娱乐时尚类业态为主的体验型商业中心。
E馆是项目整体与新时代接轨的桥梁,也是展望未来的一次畅想。设计师勾勒了流云般的曲线外观,以柔美舒展的线条,科技未来的菱格元素打造了一艘“极客方舟”。
⊙方案推敲
⊙建筑手绘
设计采用“叠蛋糕”的方式将中高区体量层层后退,使建筑和谐融入城市空间。建筑形态既满足城市退界的规范要求,同时缓和建筑体量对城市道路的压迫感。
E馆所处地形呈北高南低之势,南北高差约6M。设计充分消化了重庆地域特色的地形高差关系,打造了双首层进入方式,既便于周边人群的进入,同时为更多楼层带来人流活力。
⊙剖面透视
E馆内部空间设计不同于购物中心常规的单、环形动线模式,而是采用单一中庭+城市魔盒的具有科幻未来色彩的空间节点,通透而聚焦视线的魔盒空间有着极强的展示功能,同时确保南侧后街到中庭的视觉连接。
商业动线围绕着主题空间展开,通透感和强烈的色彩碰撞带来的视觉冲击使游人在商场中处处感受到科技感,如同置身赛博空间,直面未来。主中庭是一个购物中心最显性的表达,创造了一个与重庆历史街区地形遥相呼应但更具赛博朋克风格的数字化风格空间。
© ECE
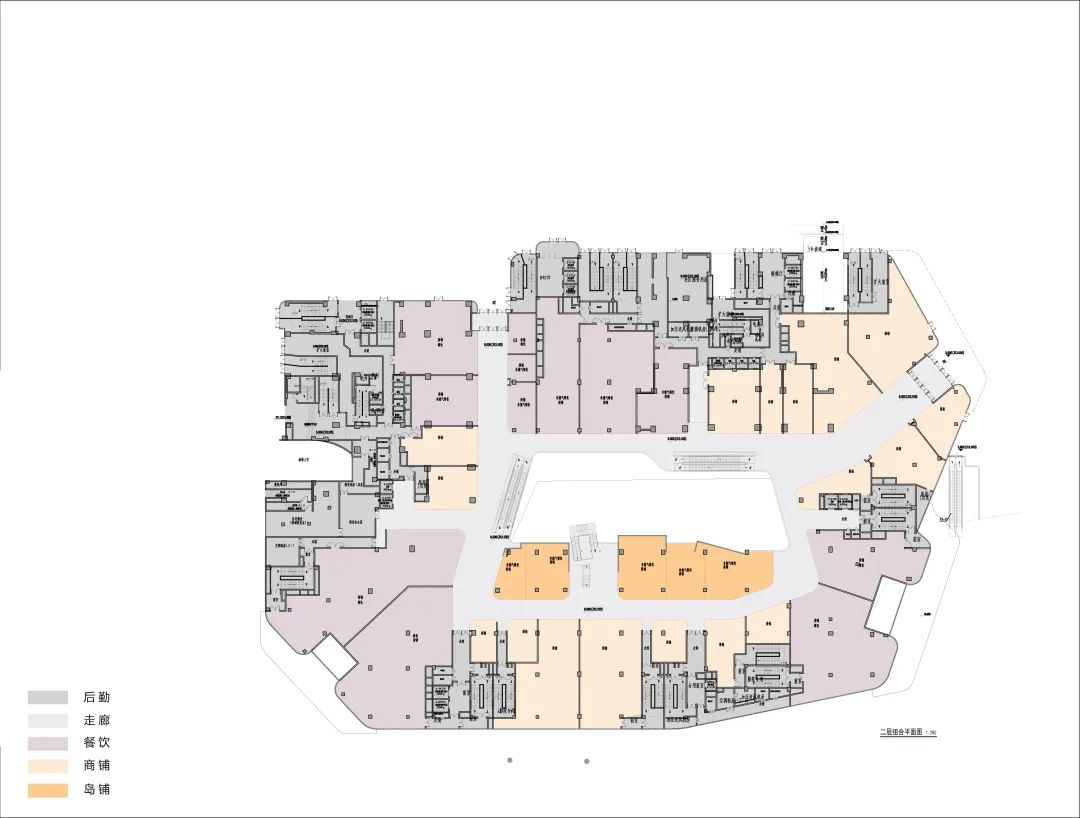
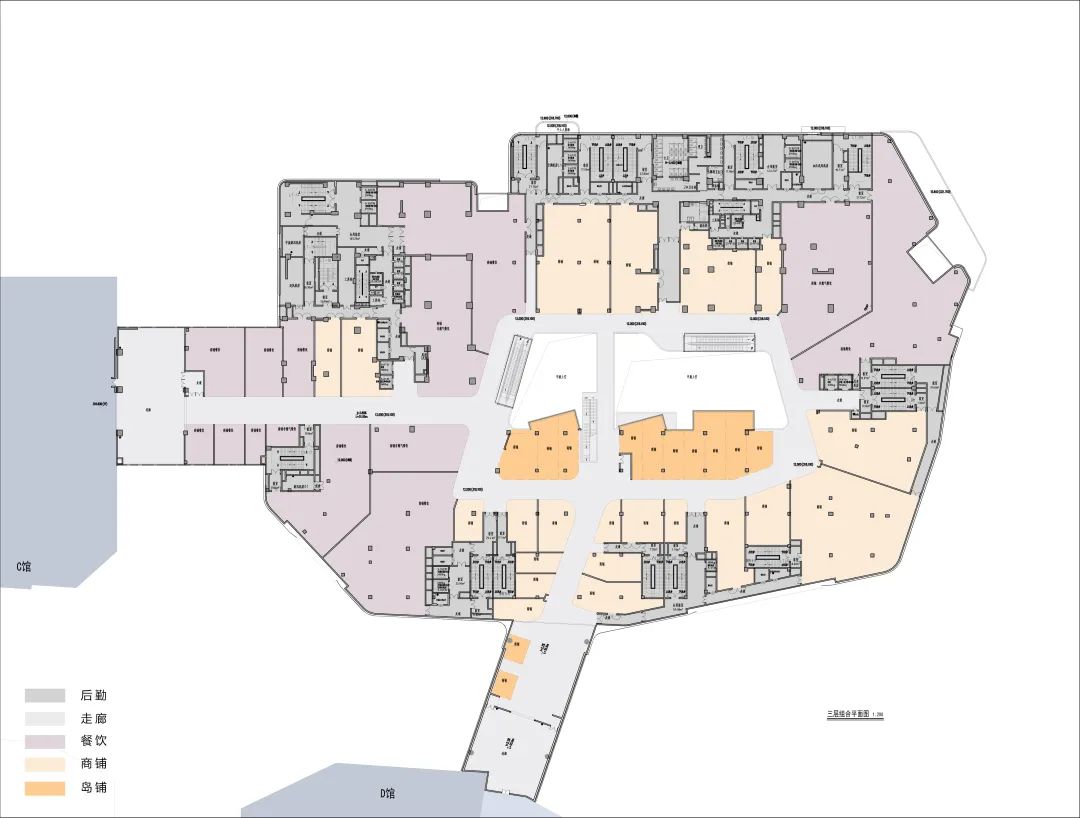
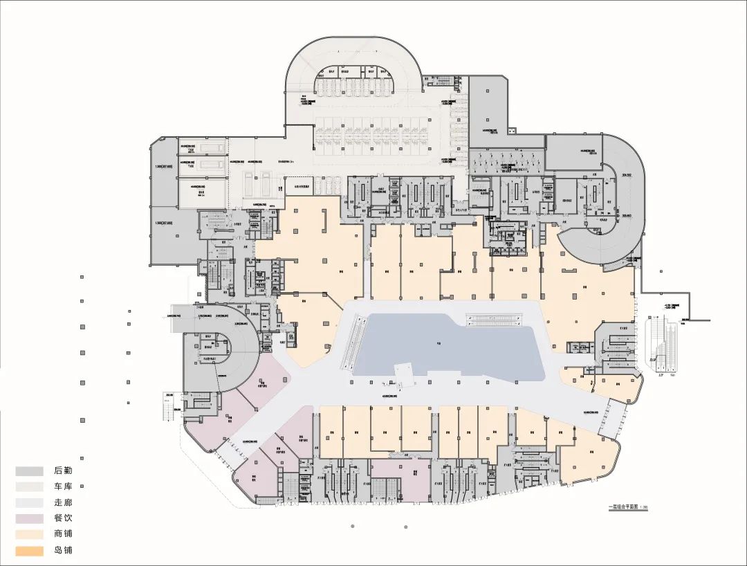
⊙滑动查看各层平面图
建筑是一种有生命力的姿态表达,在历史的长河中表达着不同的人文思想。回顾14年的设计历程,在建筑立面的设计思考中,从A、B馆以现代手法重现古典比例,到C馆大量现代元素的融入,再到D馆纯现代立面设计语言,时代天街始终紧跟潮流发展脚步前行,E馆所处的数字时代,人们充满了对未知的尝试与想象,由此设计将未来感美学融入了建筑外观。
E馆立面形体层层后退,横向展开,流畅的线条设计让建筑更具张力,主立面铝板划分以菱格为主,局部增加渐变立体变化,并辅以穿孔变化及动感的灯光闪烁效果,科技感十足。
室内设计将城市魔盒的主题发挥到极致,休息区、入口满布”盒子“状肌理元素,主入口雨棚吊顶则延续了这种元素,矩形灯带自室外延伸向室内,形成极强的视觉引导性。
主入口及重要店铺展示区域使用超白高透玻璃,晶莹剔透,高还原度,夜晚时室内灯光和展陈效果一览无余,吸引游人进入。
香槟金菱形铝板仿佛凹凸鳞片,配合灯光提升建筑立面的辨识度,温和的颜色在日光下与城市融合,消解巨大体量带来的压迫感。后勤区使用彩釉玻璃,呼应主体元素。彩釉玻璃遮阳效果明显,将后勤区与商业区从立面分隔,保持了外观视觉上的精致统一。
⊙立面材质
⊙立面图
END
重庆龙湖时代天街E馆作为时代天街系列项目的收官之作,承继已有的成熟商业体系基础,遵循时代和城市的脉络碰撞出新世代的化学反应,在巩固自身影响力的同时与潮流同行。E馆以柔美舒展的线条,科技未来的菱格元素和美妙动感的灯光效果在城市中打造了赛博美感的极客方舟。
获奖
【重庆龙湖时代天街一期-A、B馆】
荣获
2014年第九届金盘奖全国评选中年度最佳商业综合体
2015年度重庆市勘察设计协会优秀工程设计三等奖
【重庆龙湖时代天街二期-C馆】
荣获
2016年第十一届金盘奖西南地区和全国评选中最佳商业综合体
2015年度重庆市勘察设计协会优秀工程设计二等奖
2016年金拱奖建筑设计金奖
【重庆龙湖时代天街三期-D馆】
荣获
第十二届金盘奖西南地区/总评选中年度最佳商业综合体奖
2019年度重庆市勘察设计协会优秀工程设计一等奖
【重庆龙湖时代天街四期-E馆】
荣获
2020年IFA锋建筑节优秀奖
2022年中国创新设计榜中国创新设计年度作品
工程档案
项目名称 | 重庆龙湖时代天街E馆
地理位置 | 重庆市渝中区长江二路与时代大道交叉口
项目业主 | 龙湖集团
项目功能 | 商业综合体
用地面积 | 21695.3㎡
建筑面积 | 189845.78㎡
建筑设计 | 成执设计
总建筑师 | 李杰 曾庆华
公建设计总监 | 姜超
商业设计团队 | 邵伟龙 张雅楠 韩书海 杨欢 张建成 夏芸 张知敏 张晶玲 宋森 郑元武
住宅设计总监 | 徐鹏
住宅设计团队 | 陈首都 刘泽宇 李剑飞 邓文凯 徐子昂 彭思明 余快
施工图设计 | 重庆市设计院有限公司
景观设计 | 重庆蓝调城市景观规划设计有限公司
室内设计 | ECE Europa Bau- und Projektmanagement G.m.b.H.
设计时间 | 2018.09 - 2020.10
竣工时间 | 2022.10
项目摄影 | PrismImage DID STUDIO
视频来源 | 重庆城视



















































