项目介绍 Project Introduction
本案位于武汉市江夏区经济技术开发区,基地位于大光谷板块—以高新科技产业为核心;比邻大学之城,高校人才汇聚;北依汤逊湖,南靠大花山。交通便利,产业环绕,生态优良,利于打造一个高品质的武汉电竞产业基地。
⊙区位分析
⊙效果图
基地中沿金龙大街设置149米与109.3米的双塔楼建筑,将作为金龙大街一侧的地标建筑。两栋塔楼在未来规划中将引进电竞产业、互联网产业、教育产业以及传媒产业成为科技产业的汇聚地,为周边地块带来触媒效应。
基于场地条件,展示中心设置在了地块东北角,是最佳城市接驳点和人流导入点。城市转角大距离红线退让也为示范区景观的打造提供了极为有利的条件。以景墙遮挡干扰,引入鲸鱼元素雕塑,生趣盎然,独具特色的景观增强场地记忆,活泼了空间感。
为了解决场地与市政道路的高差,通过景观节点的设置拉长了人行流线,曲折的路线增添了游园趣味,缓解了场地高差。自下而上看向建筑,形成具有昭示性的视觉效果。
⊙总平面图
通向建筑的路线上,台阶旁是层叠起伏的平台水景,建筑主体前则是大面积水景,辅以星星点点的灯光,精心设计的雕塑,隔开城市的嘈杂和喧嚣,使场景氛围更加纯粹。
从全局考虑,我们希望能与周边建筑环境相协调,本案处于两栋高大的塔楼之侧,体量悬殊,设计选择延续竖向线条的分隔,取得与塔楼的一致性。
传统经典大都会风格多以高大、威严、有震撼力以造型为主的建筑立面体现,本案将其特色予以现代化的转译,保留都会风格的震撼力,细节做法以现代特征为主,一切从功能出发,讲究造型比例适度,空间构图明确美观,强调外观的明快简洁。体现了现代生活快节奏、简约、实用的理念。
⊙方案手绘
本案建筑主体为常见的方盒子形式,正立面由八根斜面廊柱为骨架作为立面元素支撑。内为整面的玻璃幕墙,现代的彩釉玻璃幕墙和高透玻璃形成内外空间在视觉上的冲击,半透明材料若隐若现的视觉感传递着丰富的空间层次。不一的玻璃体块契合不同功能的场所体验,现代的材料和工艺做法,在光影下显现丰富的场景效果。
⊙体块生成
建筑立面以米白色为主色调,浅香槟色为辅,主墙面与山墙面采用米白色铝板,以简洁造型和线条塑造鲜明的建筑表情,强烈的竖线分割显得凝练端正。正立竖向檐柱采用斜切面香槟金大面不锈钢廊柱的手法,既满足标准化需求又使得整体立面高宽比协调。
⊙材质分析
⊙幕墙大样
富有韵律感的体块分割是立面设计的关键点,我们对柱体的设置做了探究推敲,以期达到最好的视觉效果。方案一米白色铝板占比过大,柱体在视觉上表现得过于粗笨,与建筑整体比例配合美感略逊,方案二将米白色铝板占比降低,柱体在视觉上更为挺拔,但纵观整体,柱体过于纤细,无法撑起建筑。
最终方案将柱体侧面做出斜面,既保证支撑建筑的柱体挺拔的姿态,又使得浅香槟色铝板所占比例增大,丰富了色彩对比,使建筑光影变化更富有趣味。
⊙柱体推敲
针对玻璃幕墙我们进行了细节上的精心研究,设计提取四季都会的LOGO在彩釉玻璃上演化为垂坠的玻璃泪,对LOGO的韵律感进行提取融合,丰富了视觉效果,营造出精致活泼的空间感。入口处则结合LOGO打造流苏样式的镂空铝板,打造一种流苏迎接参观者的昭示性入口。
⊙概念推敲
⊙滑动查看立面图
从室内看连续通高的廊窗,形成空间内部去边界化的叙事逻辑,整体采取简约纯净的色彩,天花与墙面相连,使纵向空间具有视觉延伸的感受。
二层方洞的开口突出了旋转楼梯的结构美,引入生态绿植的咖啡吧中央则是寓意“天圆地方”的造型,方圆对比,直线与曲线的交错,强化了体块逻辑关系,使空间层次感更丰富。
✦
INTERIOR SPACE

⊙流线分析
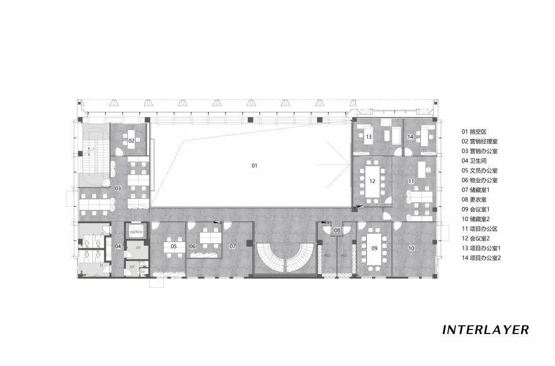
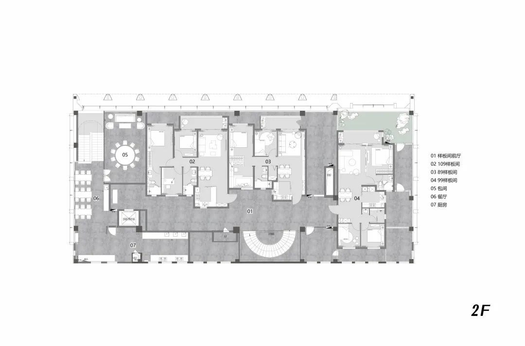
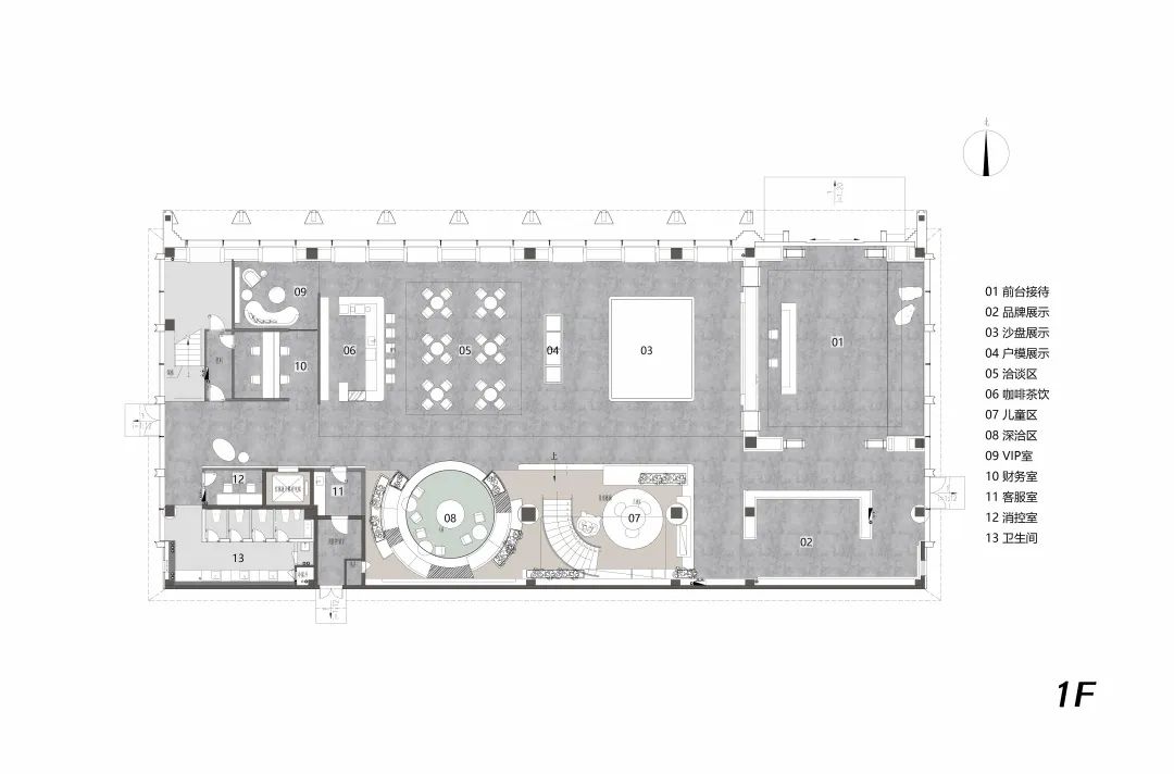
展示中心三层的设计厨卫皆备,亦有办公、包间和会议室等功能分隔,并预留了与塔楼互通的连廊与出入口,在前期平面设计中已为后期电竞场馆或者商业中心使用留下了改造的可能性。使得展示中心不再为单一功能,节约成本。
⊙剖面图
⊙滑动查看平面图
建筑整体营造一种雕塑性的仪式感,我们期望创造感性的建筑。呈现风格简洁却不失奢华,雅致又科学,将理性和感性冲突的美学发挥到极致,虽表现却克制的造型理念,将大都会风格进行现代化的转译,使其适应现代都市。
工程档案
项目名称 | 武汉经发金地 ▪ 四季都会
地理位置 | 武汉市江夏区庙山产业园幸福村
项目业主 | 金地商置华中区域武汉公司
项目功能 | 示范区
建筑面积 | 1173.98㎡
建筑设计 | 成执设计
设计总监 | 吴军
设计团队 | 程志煌 谢峻俊 朱雪莹 周海路 罗欣鹏
景观设计 | 浙江伍道泰格建筑景观设计有限公司
室内设计 | 上海董世建筑设计咨询有限公司
幕墙设计 | 弗斯特建筑科技有限公司(武汉分公司)
施工图设计 | 洲宇设计集团股份有限公司(武汉分公司)
设计时间 | 2021.08
竣工时间 | 2022.03
图文编排 | 成执品牌
项目摄影 | 此间建筑摄影 夏旭威










































