源起 / 洛阳城里的天空之境
项目地处九州腹地洛阳洛龙区,洛龙区域为洛阳热门地块,地块周边交通路网通达便捷,20分钟即可抵达龙门站。是洛阳未来发展的重点区域。
▲区位分析
▲周边配套资源
在售楼处3.0时代的今天,设计团队带着强体验性、强话题性、强标识性的定位初心,怀着天空之境的梦想,在最平凡的环境中,用最简单的几何方式重新塑造了空间形态。
一体化 / 建筑景观融会贯通
与以往传统的示范区不同,本次建筑专业与景观专业同时进行设计,打造建筑景观室内一体化,将建筑与景观相互交融为一体。元素与手法和谐统一,相辅相成,以达到最好的情景渲染效果。
在功能分区上,最大化地利用场地及大区规划的优劣势条件,合理地进行布置。在重要的展示面上,展示最美的示范区。
灵感 / 曲与直碰撞出的生命力
示范区的灵感源于康定斯基《构成第八号》,画面中“角”与“圆”碰撞叠加。运用抽象派的强烈碰撞原则,解构常规的方盒子建筑风格,运用新活力的曲线,去和传统的直线碰撞出富有生命力的,动态和谐的空间。
▲构成第八号
▲手绘草图
新的线条可以丰富空间的趣味性,新的异性空间满足不同游客的想象空间,这也是抽象派的魅力所在,在解读抽象派艺术时,一千读者心中有一千个哈姆雷特。设计旨在在身体和心灵上都提供高级而有趣的行人体验。
▲《构成第八号》的演变
光影 / 内外一体的连续性空间
空间与视觉的连续性:立面的墙体通过艺术创作产生视觉上的肌理感,将光与影带入到空间中,微风拂过水波倒影连廊起伏,层层涟漪之上倒映出朦胧的树影与建筑。运用玻璃等半透明材料,舒朗别致的造型结构打破景观与建筑的界限,打造空间与视觉的连续性与纯净性。
建筑+景观:景观与建筑充分融合,建筑丰盈景观,景观装点建筑。白天光线透过玻璃与树荫、从外界自然的洒进来,夜晚室内灯光泛出将整个室内外形成一个的连接内外借景,无不适宜。
趣味+场景:在满足空间布局的同时富有趣味性,赋予的内涵,置入情景化,场景化的氛围体验。寓情于景,使人产生趣味联想。以弧形的桥连接售楼部和样板间,登高望远的丰富体验,不仅增加了参观动线的趣味性。
多空隙空间:挑高的回廊空间,横向的尺度将空间的线性感完美的体现。半透的玻璃界定着空间,透漏着光影与空间,同时作为载体描绘着线性构成的光的语言。充分利用灰空间实现建筑与景观的柔和过渡,使两者成为自然而有机的整体。
内外一体:建筑犹如一个被交错廊桥包裹着的玻璃展品,形成城市道路边独特的视觉标识,展馆内的活动也成为展示的一部分,吸引人们走进场地,感受设计的叙事,浏览本身也成为展览发生的一部分。
认知 / 浑然天成的水镜星河
本项目突破常规售楼处几进院落的关系,将建筑本身与前后场景观最大化的利用起来,让整个示范区浑然天成大气生动,更让参观者在参观过程中,从不同角度,每时每刻感受到建筑景观一体化的美妙魅力,创造出一种漫步浩瀚宇宙的大境界。
本设计的点睛之笔一飞桥,样板间在原地面抬高4M,利用此高差设计飞桥,成功串联起设计的骨架,巧妙地用连接了售楼处与样板房;一览无遗的镜面水景,如同划破苍穹的银河,划分了地上与天上,人间与天堂,现在与未来,同时体现空间布局以及体验游园观赏的趣味性。
场地的主入口,喇叭形的入口铺地逐渐由大到小收缩,由面到线,细节处理精致富有韵律美。空间由铺装自然延伸并进行转换过渡,视线也自然的聚焦。
曲线形和方形的空间,与景观的廊桥相互回应。建筑立面的曲线与景观廊桥的曲线延续统一,这是一条隐性的认知流线——向上、向内、向光,悬隔日常,划过银河,回归自我。
▲南立面图
▲东立面图
质感 / 如梦似幻的天空之城
独特的示范区入口门头设计,三角形交错切割搭的顶盖搭配弧与圆变形拼接的墙体,选用与建筑表面相同的铝板材质,让每一个到访的客户都能体会到尊贵大气的仪式感。大门整体框架为线条设计感十足的多边几何形,肆意张扬的角,似无限延伸的线,百变的面富有动感。“迎”、“聚”、“观”一气呵成。整体为黑白色调,纯粹简约,同样不缺少高级质感。从内延伸至外的水面,倒映着蓝天白云,似天地颠倒闯入一片幻境,似梦而非梦。
在示范区中构建一座飞桥,两侧桥板采用半透明玻璃材质,整体形态以平滑曲线的设计方式连接售楼处和样板房,增加了整个空间的层次感,在视觉上丰富客户游览体验感。漫步在飞桥之上,可以感受到自己是整个空间的主角,你就是别人眼中最美的风景;行走在桥下,桥与一侧的水幕墙结合,可以感受到一种空灵缥缈的意境。
进入场地后的主要观赏空间是眼前的大面积镜面水景,水景往往给人无限延伸的神秘感和想象力。通过水景人们可以看到周围的每时每刻变化,她如同媒介,搭起了人与自然沟通的桥梁。
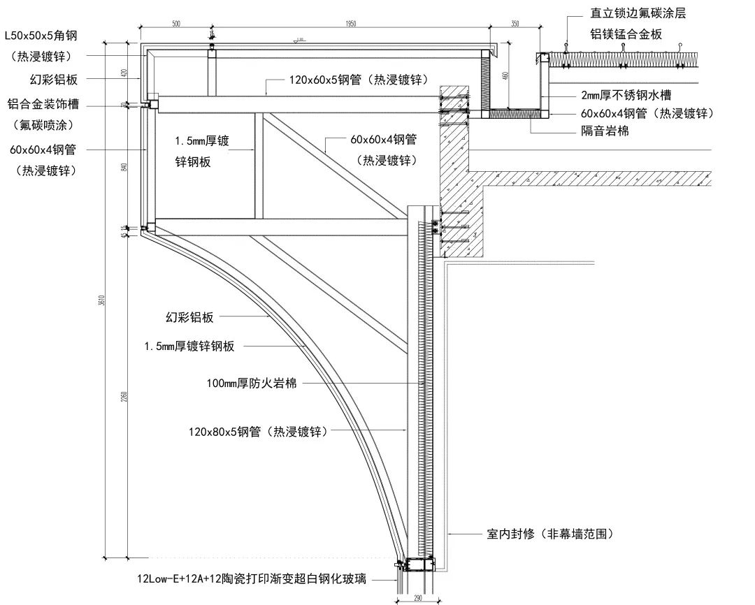
材料 / 轻盈绚丽的幻彩幕墙
材料的选择我们选择了幻彩铝板(银幻粉),不同的角度,不同的光线呈现不同的质感,让人感到型幻多姿,绚丽多彩。
▲幻彩铝板实景效果
材料的构造,细节的把控依然是我们设计追求的品质,铝板表面的穿孔细心考究,结合灯光设计营造出气泡缓缓上升的感觉,轻盈动感。
▲幻彩铝板节点详图
后记 / 造梦之人
设计师从来都是造梦之人,因为我们将梦中的“天空之镜”真实的呈现了出来;设计师又从来都不是做梦之人,因为我们必须通力合作,细心打磨,才能将美梦成真!
在空灵洁净的语境下,绿都天宸用现代简约的风格呈现出一种独特的美感,不甚繁复,以水为鉴,感受到内心逐渐平静的过程,窥见自己内心的真实感受。我们总在不断地追寻自由,却被尘世的欲望所绑架,也许正需一方静谧空间,留给心灵好好沉淀。
洛阳天宸从起始之初,我们一直在思考怎样用5个月的时间打造一个地标型的创新示范区,怎样将建筑、景观、室内软硬装真正的融合在一起,这也是操盘示范区数年以来非常期待的一个挑战。去年在旅行中的天空之境美景怎样在我们小小的示范区中落地呈现,结合康定斯基点线面的画面,将一个现代唯美的体验区呈现给大家,都是对团队极高的挑战,所幸我们三专业设计团队非常默契和专业,在无数次反复推敲和演变中,终呈现梦中那最美的场景。做好这场戏的导演实属不易,很庆幸大家的齐心协力一直陪伴左右,特别感谢成执设计、严谨的JAYCEE还有洛阳事业部的快速落地。
——王雪力 原绿都体验中心负责人
项目名称 | 洛阳金科绿都天宸
地理位置 | 河南省洛阳市洛龙区关林街道龙门大道
项目功能 | 示范区
建筑面积 | 800㎡
建设单位 | 金科集团 绿都集团
业主负责人 | 王雪力
建筑设计 | 上海成执建筑设计有限公司
设计总监 | 严芳
建筑设计团队 | 谢厚旻 孙乙
景观设计 | 上海亦构景观设计事务所
照明设计 | 上海品冈照明设计有限公司
设计时间 | 2019年3月
竣工时间 | 2019年7月
图文编排 | 成执品牌













































