项目介绍 Project Introduction


▲总平面图



▲效果图

光 之 魔 方
Light Cube

▲手绘概念图






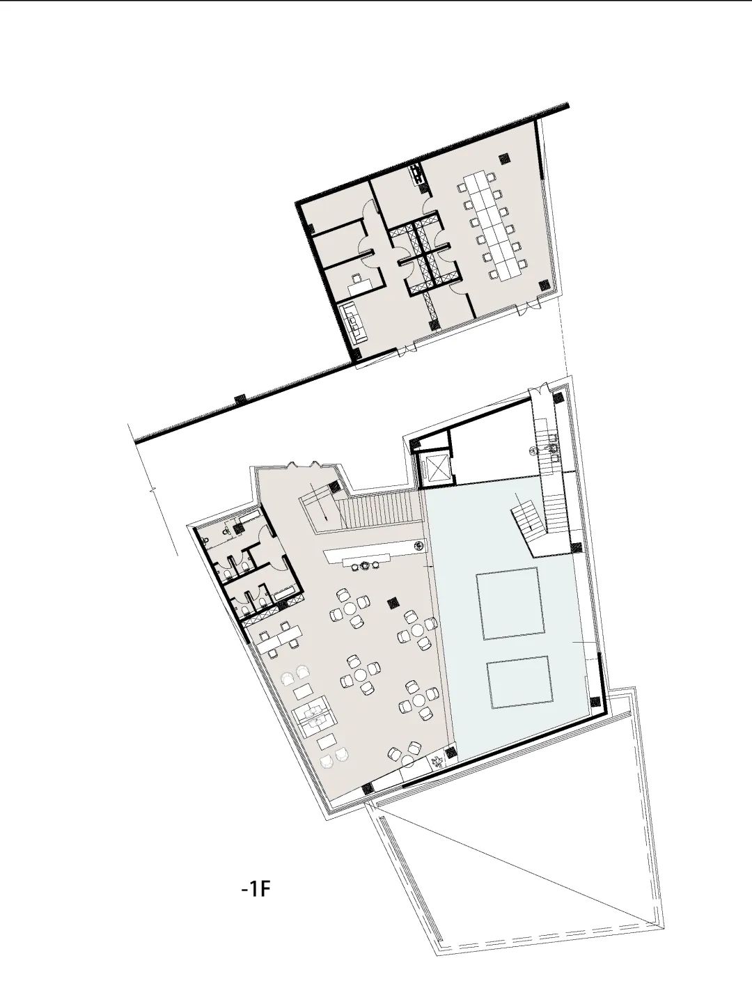
▲室内流线图

▲剖面图





▲庭院效果图






▲幕墙节点

▲表皮材质




工程档案
项目名称 | 重庆龙湖云瑶玉陛社区中心
地理位置 | 重庆市渝北区秋成大道花石沟
项目业主 | 重庆龙湖恒宜房地产开发有限责任公司
项目功能 | 社区中心
建筑面积 | 1571平方米
用地面积 | 20000平方米
建筑设计 | 上海成执建筑设计有限公司
设计总监 | 徐鹏
设计团队 | 李鲜旺 胡永明 彭斌
施工图设计 | 重庆基准方中
景观设计 | 重庆承迹景观规划设计有限公司
室内设计 | 深圳丹健环境艺术设计有限公司
灯光设计 | 广州科柏照明设计
幕墙咨询 | 北京标高时代工程咨询有限公司
设计时间 | 2019.04
竣工时间 | 2020.03
项目摄影 | 三棱镜空间摄影
项目视频 | Dynamic Lab














