项目介绍 Project Introduction
“一个恰当的建筑自然、逻辑、诗意地生长于其所处的环境中。” ——路易斯.沙利文《幼儿园漫谈》


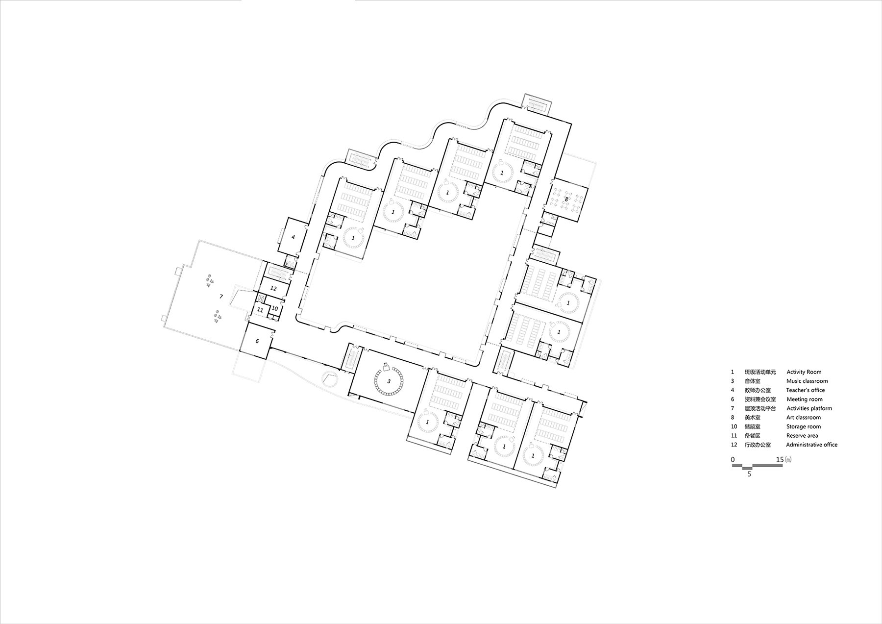
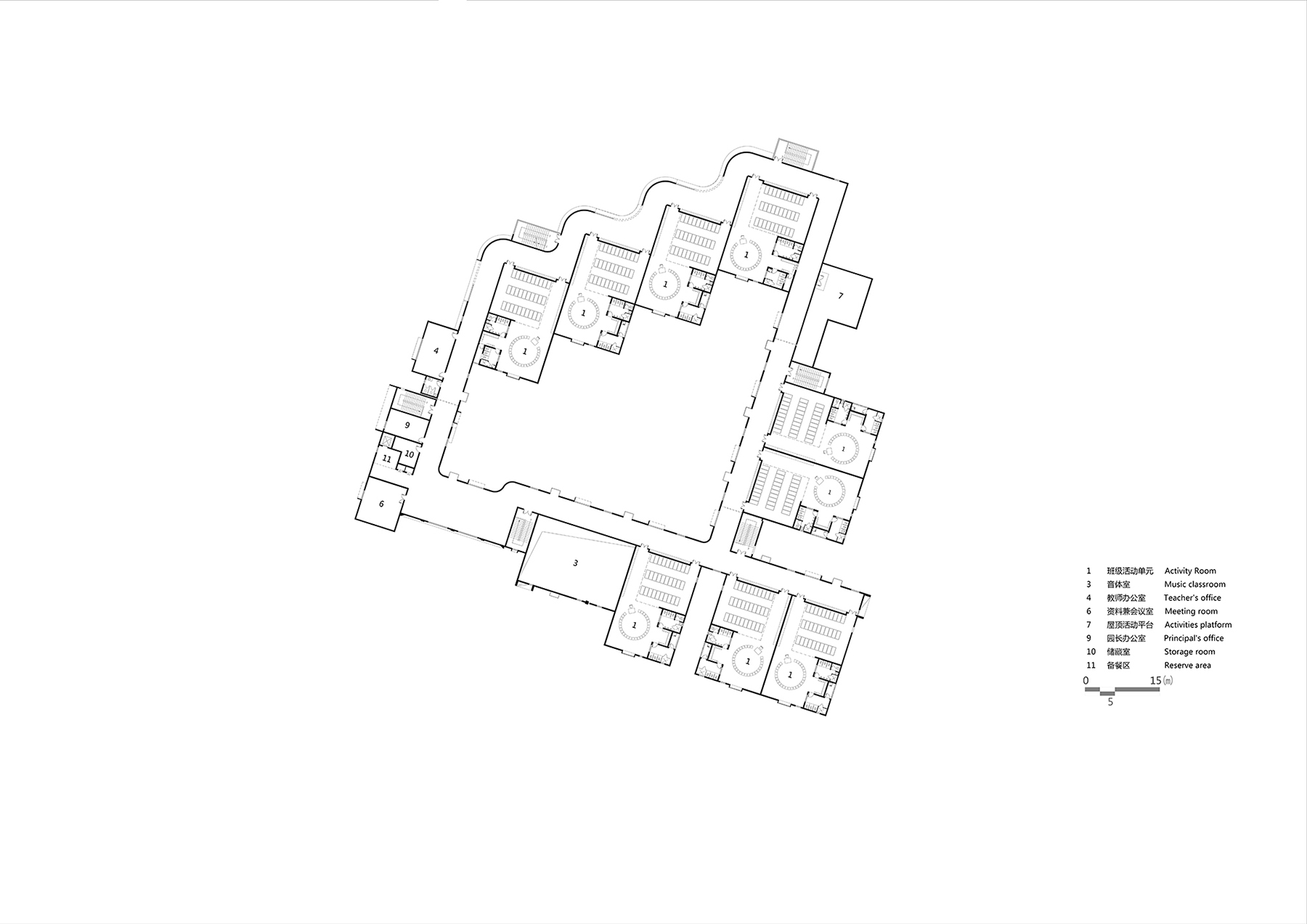
设计以“退让”为核心策略,着力缓解幼儿园与周边高层的对峙关系。建筑体量沿用地展开,以一种类似“甜甜圈”的形态围合成一个内聚性中心庭院,所有班级单元及辅助用房均围绕该庭院展开。中心庭院为小朋友们提供了一个安全内聚的游戏场地,并为日常全园性集中活动提供了空间。




体量生成图

鸟瞰图



为减少对北侧住宅的压力,幼儿园北侧的建筑体量沿界以“波浪”起伏的曲面形态呈现,塑造出一种有趣的缓冲界面,为紧邻的低层住户提供了表情生动的对视景观, 同时也为建筑内部塑造了一段富有戏剧性的围廊空间。





环廊 · 游乐场
3.8M宽的大尺度环廊串联每层的班级单元和功能房间,为全园的小朋友们提供了一条长达220余米的带状室内活动空间,它将普通的交通需求替代为小朋友的全天候活动场所,在这可以尽情奔跑、追逐,无拘无束地游戏。




凸窗 · 捉迷藏
朝着中心庭院的环廊外墙,设置了三种不同尺度的洞口,对应不同的活动场景,洞口尺寸分别为2700*2700——落地窗洞,老师和小朋友都能通过这个窗洞看到中心庭院; 1800*1800——距地900的窗洞,老师能往外看到庭院,小朋友能往上看到天空;1500*1500——进深900的落地凸窗,大人不便进入,它是小朋友们的私属小屋,三两个小伙伴可以躲在“小屋”里分享彼此的小秘密,或者与走廊上的其他小朋友玩捉迷藏的游戏。
不同尺度的洞口随阳光照射角度的不同也为走廊空间塑造了生动的光影效果,无论从室内还是室外都带给人丰富的视觉体验。





天窗 · 彩虹
设计师给三层的每一个班级单元都设置了彩色天窗,期望每天早晨的阳光透过天窗投射到活动室的白色墙面上,产生如七色彩虹般的光影效果。这面墙将成为小朋友们的天然调色板,从早晨到傍晚,随着时间变幻出不同的色彩和图案。

坡顶 · 家
标准班级单元采用了形体简洁的单坡屋顶,坡屋顶对于小朋友们来说是就是“房子”或“家”最典型也是最抽象的表达,它是一种建筑符号,也是一种情感媒介。坡屋顶不同的组合方式形成了丰富的建筑立面效果,也为周边高层住户提供了有趣的园区“第五立面”。




作为商业开发项目的配建幼儿园,在建设成本和设计管理上都有它天然的局限性。设计师力求通过朴素的设计语言,以有趣的空间来组织功能,以明确的体量来塑造光影,在限制性设计条件下用心营造一个“不受限”的儿童乐园。




