项目介绍 Project Introduction
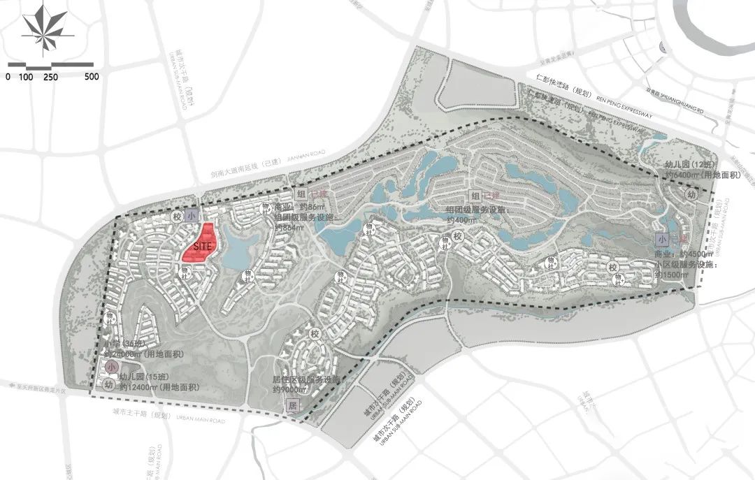
项目位于眉山市彭山区锦江镇,毗邻成都市天府新区,周边旅游资源富集,具备发展休闲度假业态的条件,片区以居住功能为主,生态环境优良。区域保留部分生态绿地,规划大量公园绿地,项目外围规划了大量服务设施。
建筑师以度假和场地独有的人文气质相结合,提出“空中院落”的设计概念,力图打造幸福舒适的度假式社区,现代简约的建筑风格,公建化立面,冠部采用“皇冠”造型,引领高端人士聚集。
项目地块属于眉山天府新区范围,拥有高端居住区属性的巨大潜力。基地外围目前已建成彭大道和双黄路两条主要通道,可快速联系天府新区和眉山主城区。地块东侧为黄龙溪谷的一期到四期,南侧靠山,地块东侧有一个天然水库,北侧为恒大旅游文化城。片区以居住功能为主,生态环境优良。
⊙ 区位图
⊙ 总平面图
考虑到项目地块呈不规则地形,利用因地制宜的的方式,以大尺度庭院为中心进行四面围合,格局上采用大开大合的庭院聚落,实现居住视线的穿透和城市界面的延续。
⊙ 景观资源视角
⊙ 产品分布及角度分析
13栋楼围合中央景观大花园的布局形式,西侧3栋大高层住宅,南北5栋小高层住宅,东侧5栋洋房住宅,延水库第一排占满景观界面,做到5栋洋房楼毗邻湖景,而后排也可以越过第一排能眺望湖景提升价值,外部有效屏蔽嘈杂的城市界面,内部独享约1.5万方超大尺度中心庭院。超大中庭若干景观节点,使规划形态显得生动活泼。
⊙ 规划生成
小区内部采用人车分流,打造酒店式归家体验。建筑地形错落布置,露台设计 ,庭院设计等方面都引入立体式生活空间的概念,充分考虑住户感受,超大阳台、入户花园设计。
⊙ 流线分析
在社区内部,建筑师通过内部庭院造园,外部借助水库资源,实现“空中庭院”的特色——让高层与庭院共生,洋房屋顶花园设计,使森林城市延续至第五立面。引入“地面绿化+层间绿化+屋顶绿化”的多维景观结构,使空中庭院与社区中心庭院进行有机结合,打造多维度复合景观体系,实现森林栖居,将居住属性与自然生态融为一体,让高层人居拥有不输于花园别墅的体验,实现空中别墅的高品质生活。
⊙ 剖面图
建筑立面设计灵感来源于眉山山水画意,整体建筑形体采用简洁的设计语言,强调舒展的横线线条,通过局部挑空阳台设计,在统一的序列中寻找自然的律动与和谐。平面和空间关系坦率的反应在外立面上,平面的错动提供给立面更加欢快的韵律感,横向线条错位变化,提供了一种新的豪宅气质。
⊙ 提取眉山山水画意
作为以“人居品质”为核心出发点,打造“家家有花园,户户能种树”。以大面积蓝灰色玻璃栏板、错位挑空阳台为整体设计元素,约270度环绕阳台设计,利用双层空间打造约6.3米半开放式挑高花园,大尺寸挑高正好在垂直方向上制造了一个巨幅通透界面,除了可以让树木尽情吸收阳光雨露,亦能大幅提升房间内的采光、通风效率。又正好构成了一个跃层住居的立体式生活空间,将现代建筑立面风格与自然生态完美结合,实现无界的绿色森系人居体验。
⊙ 立面生成
建筑整体造型采用古典的三段式风格,延续当地旅居文化,建筑竖向铝板造型延续至屋顶形成飞檐的效果,使得整个建筑形体挺拔,虚面的大面玻璃和实面的香槟色铝板形对比明晰。活泼的阳台体块交错,随时时间的变化,空中庭院能体验到不同的光影变化,将阳光、花园、开阔视野、超大中庭,让生活与花园融为一体,室内室外没有界限,更大限度实现生活完全被绿色包围。
建筑立面玻璃栏板采用点抓式驳接爪,打破传统美学,使得建筑外立面更加简约大气,玻璃栏板达到无框效果,视野开阔,实现健康森林旅居体验。顶部采用品字形皇冠造型设计,是当地旅居文化与公建化有机结合,极具时代性。
立面材料以香槟色铝板、米黄色真石漆、灰棕色涂料为主,体现酒店化归家体验;阳台采用隐框蓝灰色镀膜玻璃栏板与香槟色铝线条相结合的形式,营造度假体验式空中花园,局部近人尺度采用石材和拉丝不锈钢,延续黄龙溪谷旅游文化,打造度假式酒店大堂。
⊙ 材料分析
阳台上下口采用50*50的香槟色铝型材,规避了土建施工带来的不平整效果,舒展且平整的横向线条营造出与众不同的效果,为现代城市添加时尚典雅的艺术品位。转角阳台设计,将户型观景面增加到极致,打造环幕视野,营造270°极致环幕视野,极致回归自然体验,立面形式与景观资源完美结合,户户拥有墅级私家花园和极致开阔视野。
⊙ 幕墙窗系统节点大样
超大面宽阳台设计,外立面土建部分被蓝灰色玻璃栏板围合,大面积的玻璃和落地窗,整个立面平滑如镜,山水倒映,成就光线与建筑的灵动美学。奇偶数层阳台户型设计为错位挑空,错位的韵律赋予整个建筑生命,建筑与自然融为一体。
入户大堂采用仿铜拉丝不锈钢与米白色的石材,追求近人尺度的温暖和细腻感受,细节体现精神。
经过多能方案和数据对比论证,设计师对清峯岸定位为高端度假酒店化豪宅,高层产品我们采用大面宽、浅进深的一梯两户;洋房产品采用跃层及大平层产品,打造空中墅级居住体验。
⊙ 户型爆炸分析图
从图纸上看,错落分布、相互咬合,上下层空间的结构完全不同,往往需要隔层才能对应,致使设计研发极度复杂。
⊙ 跃层平面分布图
⊙ 复式竖向分布图
八栋高层住宅楼的主要景观面均朝向中心庭院,墅级洋房主要景观面均朝向自然水库,形成连续性穿透空间和城市界面,使得每间户型均能获得较好的景观资源及视野。
而窗外的绿植恰好形成一道屏障,可以有效减弱外界与室内的视觉,在这被自然气息包裹的空间里,居家实用与建筑特色完成从面积博弈到情景共生的和谐转变。
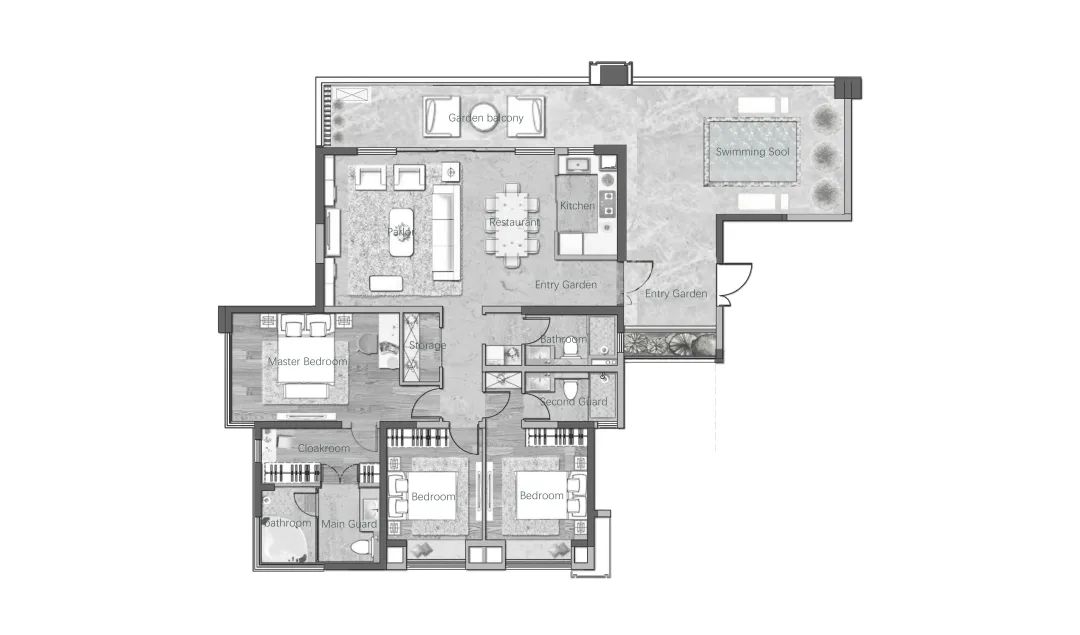
| 超40m²阔尺花园 享溪谷四季景致
| 超6米挑高露台 纵览疏阔天际线
| 超9米大横厅 尽享诗意生活
| 豪华双套房设计 私密性极佳
⊙ 高层B户型180m²奇数层
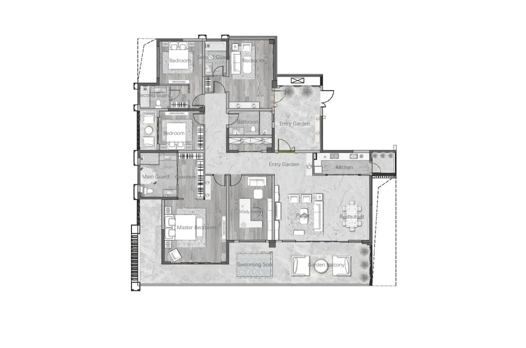
| 超18m²入户花园
| 豪华三套房设计 独立分区 私密性极佳
| 超10米阳台 领略墅级风光
⊙ 洋房大平层D户型296m²偶数层
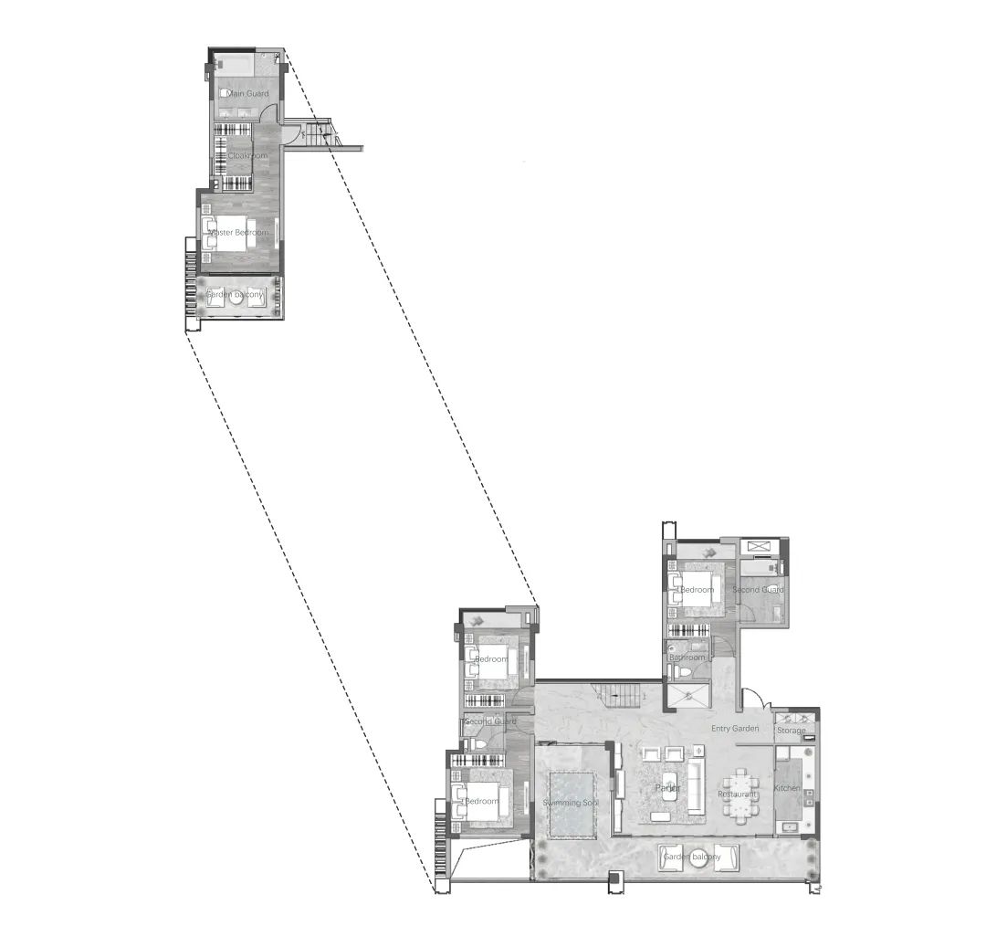
| 上下跃层空间 纵览溪谷广阔天地
| 三大露台 享溪谷四季景致
| 阔尺横厅 尽享诗意生活
| 挑空客厅 多变创意空间 更多遐想
⊙ 跃层洋房C户型249m²
虽为居住项目,但建筑师仍以“公共性”的眼光来对待,试图在黄龙溪谷古镇中,找到合适的定位及表达。项目公区“酒店化”、度假化的旅居体验,立面“去住宅化”的设计,对黄龙溪谷片区城市空间都赋予了一种全新的气息,产品创新成为本案突破的难点。
工程档案
项目名称 | 黄龙溪谷清峯岸
地理位置 | 眉山市彭山区锦江镇
项目业主 | 优品道/复地 · 眉山优联房地产开发有限公司
项目功能 | 住宅
建筑面积 | 85174.03 ㎡
建筑设计 | 成执设计
总建筑师 | 李杰
设计总监 | 徐小康
设计团队 | 郑先云 廖楚薇 朱永林 金磊 曹鹏程 孙爱园(排名不分先后)
施工图设计 | 四川中泰联合设计股份有限公司
景观设计 | 四川景度环境设计有限公司
样板房室内设计 | 四川中英致造设计事务所
公区室内设计 | 成都千集创意设计有限公司
设计时间 | 2019年5月-11月
竣工时间 | 2021年11月
项目摄影 | PrismImage



























































