项目介绍 Project Introduction

编织城市肌理.URBAN FABRIC
生态新城的街道空间
花山新城地处武汉市东郊“一江三湖”(长江、北湖、严西湖、严东湖)交汇处。根据武汉市最新规划修编,花山新城将围绕国际一流生态城、生态文化区为目标建设,并提出了29项生态城市建设指标,明确指出绿色建筑节能措施要细化等具有“武汉特色”的指标。
⊙花山生态新城地理格局(图片来源于网络)
本案则位于武汉东湖高新花山片区,同时在大东湖生态绿楔规划带上,毗邻多个湖泊森林公园,如花山河公园、汽车主题公园、生态农业科普园等,自然景观资源丰富。因此为回应花山新城的整体规划,本案设计师希望以绿色装配式木结构作为主体结构,为这座"绿色样板城”添砖加瓦。

⊙项目区位
项目周边公园绿地丰富,环境怡人,紧邻总面积约为6万平米的湖北省档案馆新馆。在对城市肌理的现实效用研究中,我们发现可识别性是一座城市空间环境品质的重要衡量标准。面对如此巨大体量的档案馆,场地条件的无序性和复杂性,我们如何使建筑与之相协调形成空间组团,又能易于识别,是我们首要解决的问题。
设计师将场地抬高了2.5m,以减弱观感上的体量差。同时将建筑以20°的夹角置于场地的最内侧,保留大量前场景观区域又不失建筑自己本身的昭示性,以突出城市会客厅的功能,使往来的人流直接看到建筑并进入到建筑中展开一系列的活动,激活场域。
⊙竖向分析

⊙总平面图
场域中的建筑营造. BUILDING DESIGN
虚静、璞直与自由
“思虑静后至德不去,孔窍虚乃有气入”,要先知道“虚”,之后才能够了解什么是“实”,要先明确“静”,之后可以清楚“动”。本案设计理念来源于中国道家的“太极”,整体以最极致的方形扭转后,自然的曲线柔化了建筑原本界限分明的阴阳面,形成屋顶和墙面的自然延续。与直线性的建筑相比,曲线传递出来的更多的是对自然意象的转化和寄托。

⊙手绘形体生成
设计师运用曲水流觞的静水面设计,大面积半人高的可穿越的水景,抬升后的水面和建筑融为一体,曲线的坡道亦是形体的自然延续。宽敞的水景屏蔽了周边杂乱的环境影响,旨在让人们逐渐离开城市的嘈杂和喧嚣,给人以渡水穿云的奇特体验。
建筑“虚静”美,通过建筑宁静的空间、静态的水流、自然的树木等等对建筑的渲染而成,表现建筑的清、淡、静、雅,超凡脱俗;以“淡”、“静”表象显示含蓄、意味深长的“意蕴”。
绵延的屋顶与临街的湖北省档案馆新馆遥相呼应,如同山峦般高低起伏,绵延不断,具有统一秩序与规律。
建筑的表现形式有很多种,有的如档案新馆一般有巨大的体量、厚重的悬挑,深深扎入城市的肌理之中;而另一类建筑,轻挑的结构、通透的表皮、仿佛消失在自然界中。
建筑两面临水,因此通透的玻璃幕墙延展了空间,模糊内外边界。这是一种相互贯穿和相互渗透的关系,赋予空间视觉一种透明的现象。长边的玻璃面与金属屋面通过体块扭转形成的优美弧线自然分割,同时也分割了立面的虚与实。
人流随着隐于水面的道路引导通过穿越式的水景体验,随着步移景异内心渐渐趋于平静,到达了一处可稍作休憩之所。建筑形体的扭转在入口处重归方正,聚集的金属艺术装置模拟沙洲上的波光粼粼。通过建筑形式的变化带给人不同的空间体验与感受,从而在心理上引导人流。
结构逻辑的表达.TIMBER STRUCTURE
木构的生命力与朴实性
建筑的核心形式是结构机制和受力关系的必然结果;而艺术形式则是呈现结构机制和受力关系的性格塑造。建筑的生命表现力来源于连接方式,或者说连接方式决定了建筑及空间的生成。
本案以胶合木作为主体结构,简率的结构,多样的统一,真实而有持续,是设计师对结构的定义。结构与形体一同扭转,以毫无雕饰的自然之材去表现结构的变化无穷。人入其中,又能感受内部层层递进的序列感。
⊙结构分析图
落地窗与屋面的界限由扭转的曲线分开,优美的形态在建筑体量上增加了活泼的动感,拟合曲线的螺旋木构骨架是对自然意向的转换——仿若人类本源基因序列的扭转之舞,让人感受到生命的力量。
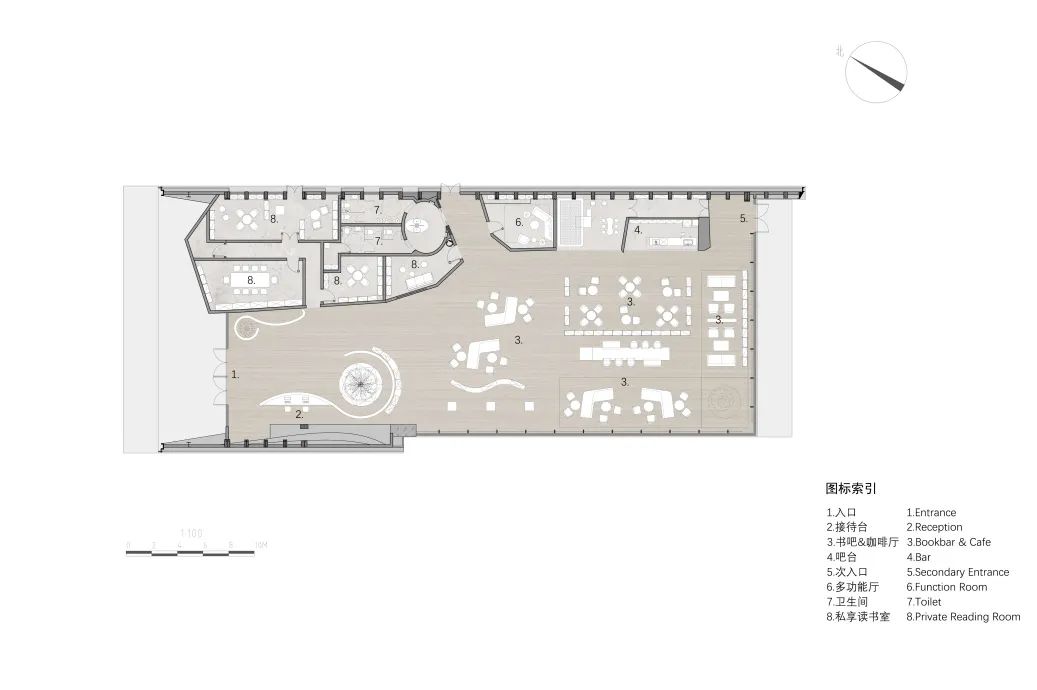
我们将功能性的房间布置在一侧以隔断遮挡,留下一个高大宽敞的大厅作为书吧和咖啡厅,避免了空间割裂感。大面积的落地窗将自然光引入室内,营造空间序列。设计师利用空间中光影强度的变化,使空间产生差异化,当人们在此阅读交流时,便可以感受到光旋律变化所带来的富有变化的空间序列层次。
⊙剖面图
⊙平面图
感知建造的艺术.CONSTRUCTION
一柱一粱一脊一面
由于设计师是将长方体建筑进行了扭曲,抽空其中一个纵向面的门架柱,室内空间高度、门架梁的呈现效果、扭转角度等有较为具体的要求,使得结构实现变得极有挑战。且设计师希望呈现出一个完整的木结构,不外露任何钢构,因此常规的梁柱结构体系已难以解决本案结构要求。结构师通过与各专业需要进行充分沟通及全盘考虑后,在结构实现上重点抓住“一柱一梁一脊一面”的特点,将渐变的扭曲骨架与室内外两条“S”型脊线进行了完美结合。将建筑要求的“独立”“大跨”“悬挑”“扭转”“曲面”“通透”“全木结构”展现的淋漓尽致,也使得钢、木结构进行一次亲密无间的结合。
⊙材料分析图
⊙不同角度结构模型
一柱
在抽掉纵向门架柱后,再加上横向本身就无柱,纵横向交叉点的柱子重要性显而易见,此柱须承受半个建筑的垂直荷载及来自两面180度的侧向荷载。结构实施的时候就将Φ600的钢柱深埋基础2500mm,实现基础的二次浇注来满足各方面的荷载要求。
⊙节点大样
一梁
单跨40米的弧形梁是这个项目的亮点,弧形梁连接的是玻璃幕墙,这对大跨度的弧形梁的形变及施工精确度要求极高,工程施工时需3d维度精准定位。整体工程都进行工厂预组装,现场再装配式施工,才得以保障工程的毫米级误差。
一脊
屋架扭转是本工程的独特之处,也是本工程的难点,弧形梁受力自身的扭曲就很难解决,通常都是通过扭曲的立柱来平衡屋脊的偏心力,但本工程不允许中间立柱,屋脊梁又是本工程重要受力体系,结构实现就利于”S”型桁架与桁架两侧的支撑,再加上有条件的区域进行整体钢结构平衡来控制整体建筑的扭曲。
⊙顶部结构示意图
一面
由于建筑是双曲面屋面,且屋面与墙面形成统一一个面,若不在材料运用上必须充分结合材料本身的特性,则很难实现。如结构就不能采用混凝土结构,屋面瓦不能采用长条状的铝镁锰等。
本案扭曲面利用木结构龙骨间距关系,将一个扭曲屋面安装300mm的间距进行片块化切分,每一个扭曲尽量做少量变动,再利用15mmOSB板自身的板型及承载受力特性进行定性弯曲。才将结构扭曲屋面进行了初步定型,为了满足最终呈现完全扭曲自然及铝镁锰的安装平整面的要求。我们在初步定型的结构基础上再根据300mm网状定点的办法再进行一次12mmOSB板的安装才得以最终呈现。
银灰色幻彩铝板的在日光下,使得建筑表皮的部分物质属性消失了,凸显出充满张力的曲线线条,镜面水的引入更激起了无尽想象的空间,整个过程自然光线的变化无比生动。
灯光设计也是立面设计的一大亮点,通过参数化设计的手法,将点状灯有序的布置在铝板衔接处,从立面至屋顶,灯的密度随之减小,在夜晚宛如银河流淌在银色建筑之上,成就光线与建筑的灵动美学。
⊙滑动查看立面图
结语. END
本案以谦卑的姿态植入场域之中,同时不乏个性和张力。材料的选择为胶合木、玻璃、钢等现代感很强的材料。结构的处理倾向于将结构杆件处理成纤细微小的状态,形式上轻盈通透,能够极其自然的与环境融合。这样的建筑是单纯而真实的,没有矫揉造作。
工程档案
项目名称 | 武汉城建·花山印象
地理位置 | 湖北省光谷区花城大道与花山大道交叉口
项目业主 | 武汉城建集团
项目功能 | 城市会客厅
建筑面积 | 1022㎡
建筑设计 | 成执设计-ArchLab 创新空间实验室
室内设计 | 成执设计
总建筑师 | 李杰
建筑设计总监 | 严芳
建筑设计团队 | 胡瑞冰 林威 朱亮
室内设计总监 | 汪纪嵘
室内设计团队 | 俞国宝 龚蕾
木构设计及建造 | 隽执科技
建造总控 | 陈迪龙
木构施工图 | 陈浪 黄利民
景观设计 | 武汉市中创环亚建筑景观设计工程有限公司
幕墙设计 | 北京凯顺腾建筑设计有限公司
设计时间 | 2021.02
竣工时间 | 2021.09
项目摄影、视频 | 此间建筑摄影 然也空间建筑摄影










































