建筑“生命形式”的基本特征:有机统一性,运动性,节律性和生长性。
——苏珊·朗格
空间与场所的 有 机 性
⊙公园总平面(图片来源于网络)
⊙视线分析图
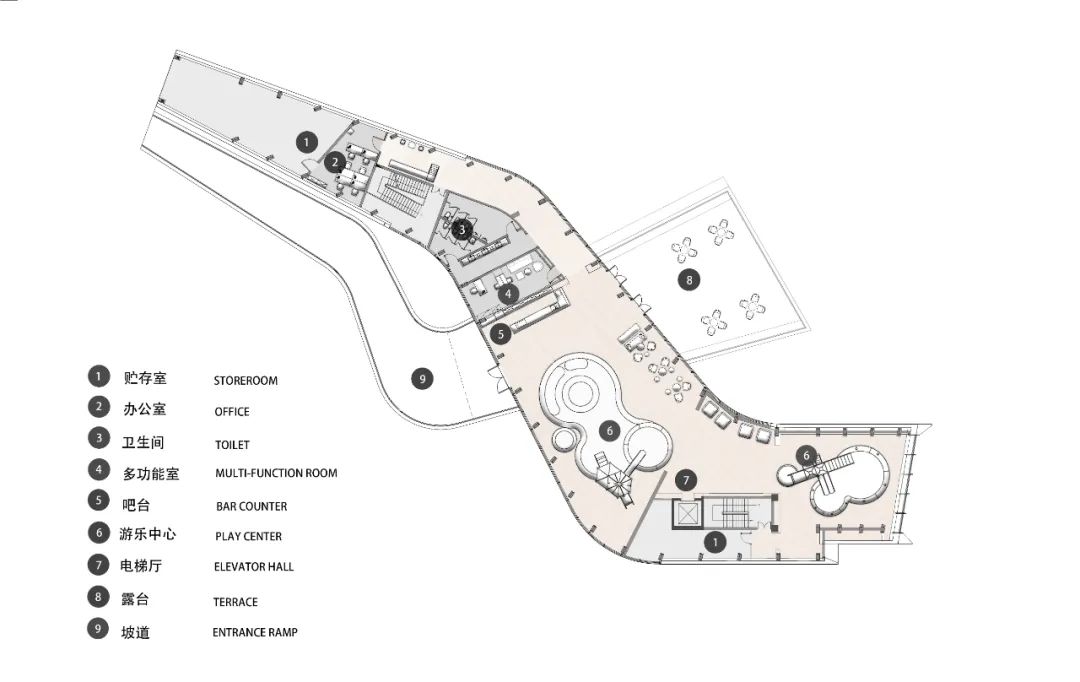
⊙总平面图
兰
灵感与机构的 共 通 性
⊙形体生成图
⊙剖面图
⊙滑动可查看平面图
木
构筑理性的 诗 意
⊙结构分析图




空间如何被 建 构
⊙木构构件排列图
建筑的仿生设计,也给幕墙带来了极大的考验。双曲面的外墙铝板使得每一块铝板都不同,我们运用参数化设计,将所有铝板分类标号,现场根据标号进行施工,大大的增加了施工难度和时间。
⊙铝板尺寸示意图
⊙铝板电梯大厅排版图
⊙滑动查看立面图
⊙工程现场
结语
我们始终坚持“从生态到建筑,从技术到自然”的原则,设计不仅仅是一个内部工作和外在形式,相反,设计应扩大到影响建筑环境的所有方面及相互关系的塑造。以环境整体的态度来对待建筑的自然性、社会性、生活性、建构性和发展性,进行形式自身的地域环境创造。我们立足地域、注重场所、体现工艺,而这幢建筑将按照人和环境的变化来生长、延续,具有生动的、有创造力的精神。
工程档案
项目名称 | 宜宾白兰美学馆
地理位置 | 宜宾市高铁新城
项目业主 | 宜宾丽雅量典置业有限责任公司
项目功能 | 美学馆
建筑面积 | 1000㎡
建筑设计 | 成执设计
室内设计 | 成执设计
建筑设计总监 | 徐鹏
建筑设计团队 | 堵奇峰 朱坤龙 周鑫妍
室内设计总监 | 汪纪嵘
室内设计团队 | 俞国宝 徐银春
木构设计及建造 | 隽执科技
幕墙建造 | 隽执科技
建造总控 | 陈迪龙
木构施工图 | 陈浪 李晓斌
景观设计 | 上海亦构景观设计事务所
幕墙设计 | 上海安岩设计咨询有限公司
施工图设计 | 四川省建筑设计研究院有限公司
设计时间 | 2021.01
竣工时间 | 2021.09
项目摄影 | 存在建筑
















































